Beds:0
Baths:0

Dresden, Germany

Listed by: VON POLL IMMOBILIEN Dresden | von Poll Immobilien GmbH

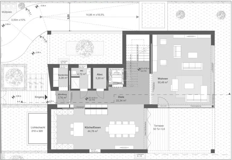
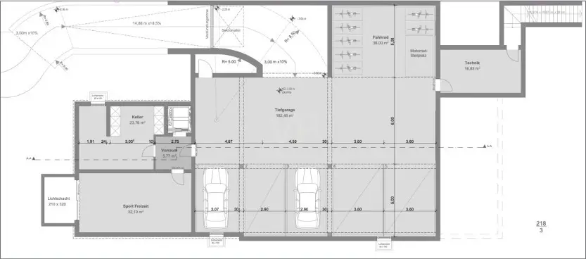
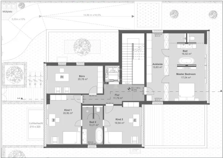
For sale is an exclusive plot of land with an area of ​​approximately 925 m², which already has a building permit valid until the fourth quarter of 2026. The plan is to build a luxurious villa with approximately 350 m² of living space, complemented by a spacious underground garage for up to five vehicles. The development also includes a stylish pool complex and boasts a modern, architecturally sophisticated design. The combination of location, plot size, approved project, and high-quality planning offers an excellent basis for realizing an exclusive dream home – whether for owner-occupation or as an investment with high potential for appreciation. - Building permit valid until Q4 2026 - Gross floor area: 690 m²
Show More Show Less

For sale is an exclusive plot of land with an area of ​​approximately 925 m², which already has a building permit valid until the fourth quarter of 2026. The plan is to build a luxurious villa with approximately 350 m² of living space, complemented by a spacious underground garage for up to five vehicles. The development also includes a stylish pool complex and boasts a modern, architecturally sophisticated design. The combination of location, plot size, approved project, and high-quality planning offers an excellent basis for realizing an exclusive dream home – whether for owner-occupation or as an investment with high potential for appreciation. - Building permit valid until Q4 2026 - Gross floor area: 690 m²

Highlights:

  • Stylish pool complex

  • Modern architecturally sophisticated design

  • Spacious underground garage

  • High-quality planning

  • Luxury villa potential

  • Show More Show Less
Reference ID:25441017 Web ID:lryz

Listed by VON POLL IMMOBILIEN Dresden | von Poll Immobilien GmbH

Contact email form:

Highlights:

  • Stylish pool complex

  • Modern architecturally sophisticated design

  • Spacious underground garage

  • High-quality planning

  • Luxury villa potential