Camas: -
Balneario: -

7013 Belcastle Ln, College Grove, Tennessee, 37046, EE. UU.

Listado por: Susan Gregory | Bienes Raíces Onward

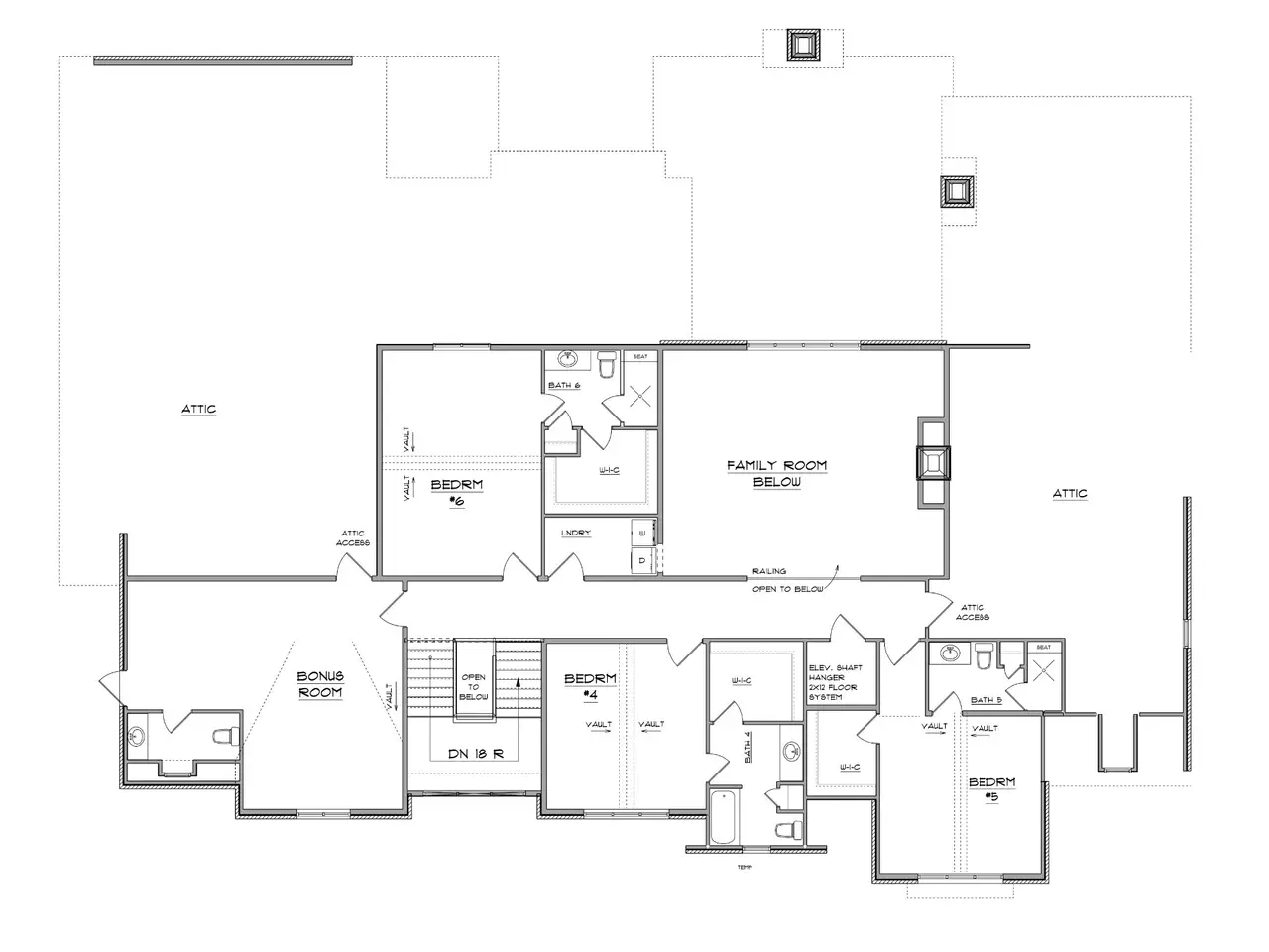
Infinitas posibilidades te esperan: ¡Construye la propiedad de tus sueños en 5 impresionantes acres! Imagina despertar con impresionantes vistas y un espacio infinito, donde tu visión de la casa perfecta se hace realidad. Este terreno plano de 5 acres ofrece una oportunidad única para crear un refugio privado a tu medida. Con una amplia envolvente, puedes diseñar una casa de cualquier tamaño y piscina, garantizando lujo sin renunciar a nada. Ya sea que sueñes con amplios espacios de entretenimiento al aire libre, un establo para caballos o animales, un establo para fiestas para reuniones inolvidables o una casa de huéspedes privada, esta propiedad ofrece un potencial ilimitado. Con gas natural disponible, la propiedad de tus sueños combinará la comodidad moderna con la serenidad de la vida rural. El plano y la elevación en las fotos muestran solo una posibilidad: deja que Aspen Construction haga realidad esta visión o trabaja con su equipo de expertos para diseñar una obra maestra personalizada desde cero. Esto es más que un terreno: es la base de tu futuro. No pierdas esta oportunidad única de construir la casa que siempre has soñado. ¡Llama hoy para explorar las posibilidades! EL PRECIO DE LISTA es SOLO PARA EL TERRENO.
Mostrar más Mostrar menos

Infinitas posibilidades te esperan: ¡Construye la propiedad de tus sueños en 5 impresionantes acres! Imagina despertar con impresionantes vistas y un espacio infinito, donde tu visión de la casa perfecta se hace realidad. Este terreno plano de 5 acres ofrece una oportunidad única para crear un refugio privado a tu medida. Con una amplia envolvente, puedes diseñar una casa de cualquier tamaño y piscina, garantizando lujo sin renunciar a nada. Ya sea que sueñes con amplios espacios de entretenimiento al aire libre, un establo para caballos o animales, un establo para fiestas para reuniones inolvidables o una casa de huéspedes privada, esta propiedad ofrece un potencial ilimitado. Con gas natural disponible, la propiedad de tus sueños combinará la comodidad moderna con la serenidad de la vida rural. El plano y la elevación en las fotos muestran solo una posibilidad: deja que Aspen Construction haga realidad esta visión o trabaja con su equipo de expertos para diseñar una obra maestra personalizada desde cero. Esto es más que un terreno: es la base de tu futuro. No pierdas esta oportunidad única de construir la casa que siempre has soñado. ¡Llama hoy para explorar las posibilidades! EL PRECIO DE LISTA es SOLO PARA EL TERRENO.

Reflejos:

  • Impresionante terreno de 5 acres

  • Envolvente de edificio de gran tamaño para diseño personalizado

  • Potencial para amplios espacios de entretenimiento al aire libre.

  • Opción de granero o casa de huéspedes.

  • Gas natural disponible para la comodidad moderna

  • Potencial para piscina de lujo

  • Posibilidad de granero para fiestas

  • Oportunidad para un retiro privado

  • Obra maestra personalizada diseñada desde cero

  • Mostrar más Mostrar menos
ID de referencia:2781030 Identificación web:yluk

Listado por Susan Gregory | Bienes Raíces Onward

Contact by phone:  615-207-5600
Formulario de correo electrónico de contacto:

Reflejos:

  • Impresionante terreno de 5 acres

  • Envolvente de edificio de gran tamaño para diseño personalizado

  • Potencial para amplios espacios de entretenimiento al aire libre.

  • Opción de granero o casa de huéspedes.

  • Gas natural disponible para la comodidad moderna

  • Potencial para piscina de lujo

  • Posibilidad de granero para fiestas

  • Oportunidad para un retiro privado

  • Obra maestra personalizada diseñada desde cero

Continúe explorando colecciones relacionadas