Beds:5
Baths:4 Full | 2 Half

3752 North Janssen Avenue, Chicago, Illinois, 60613, USA

Listed by: Carrie McCormick | @properties Christie’s International Real Estate

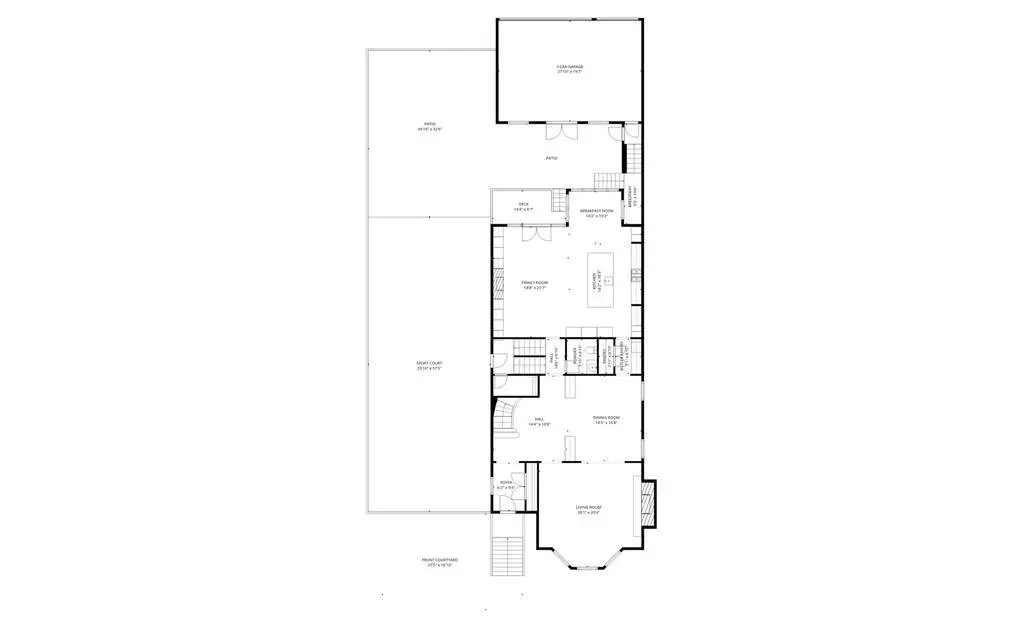
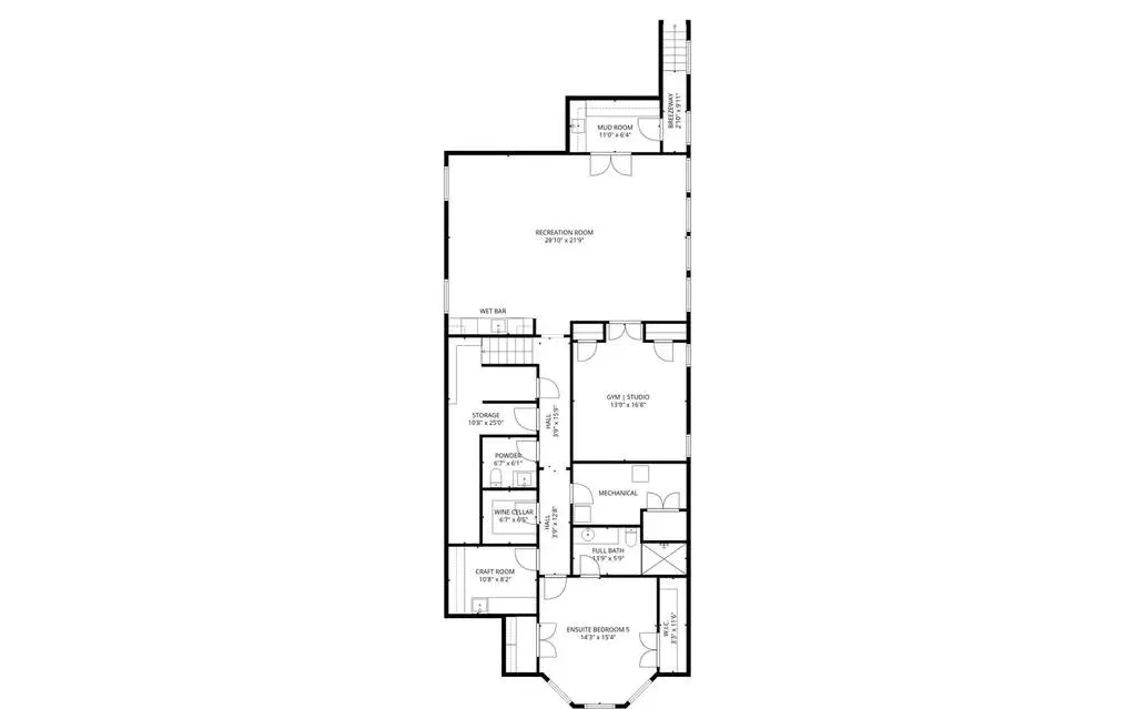
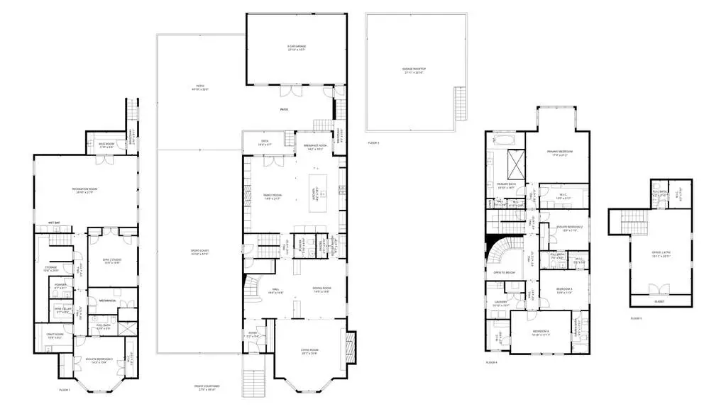
Welcome to 3752 N. Janssen, an extraordinary residence set on a rare 62.5' x 125' lot in the heart of the Southport Corridor. The home itself sits on a 37.5'-wide lot, while the adjoining 25' x 125' landscaped side lot has been transformed into a private outdoor sanctuary. Hidden discreetly behind a privacy wall, this urban oasis features lush gardens, a tranquil water wall, a bluestone patio with built-in firepit, a sport court, and a garage roof deck-all enhanced with integrated surround sound for seamless indoor-outdoor living. A rare 3-car heated and attached garage offers effortless convenience and comfort, elevating everyday living in this remarkable city retreat. With 5 bedrooms, 4.2 baths, and 6200 SQFT of living space, this home is truly a forever home. A refined marble-floored entry opens into a dramatic two-story foyer with a curved staircase, custom millwork, coffered ceilings, and a Dennis & Leen light fixture instantly setting the tone for the elegance that defines this home. The living room exudes quiet sophistication with silk wall coverings, coffered ceilings, a gas fireplace with stone mantel, and a bay window overlooking tree-lined Janssen Street. The formal dining room, anchored by a striking David Iatesta chandelier, is enveloped in custom millwork and hand painted wallpaper with hand embroidered silk cherry blossoms, framed by antique mirrored shelving that elevates the ambiance for refined entertaining. A butler's pantry connects the dining room to the kitchen, offering granite counters, an ice maker, ample storage, and a walk-in pantry. The width of this home is evident in the kitchen and family room and maintains the same elevated aesthetic. The kitchen showcases 2-inch granite counters, abundant 42" cabinetry, professional-grade Wolf, Miele, and Sub-Zero appliances, dual sinks, and an oversized island with breakfast bar. A bright breakfast nook fills the space with natural light. The adjoining family room features custom built-ins, a limestone-surround fireplace and French doors opening to a charming terrace ideal for morning coffee or evening cocktails. Steps lead down to the landscaped backyard oasis and a roof deck above the three-car garage. A stylish powder room completes the main level. Ascending the curved staircase, four exceptional bedrooms await. The primary suite - an elegant retreat - offers vaulted ceilings, silk wall coverings, custom moldings, luxe silk draperies, hardwood floors and a custom walk-in closet with fine wood-built ins. The spa-caliber bath includes heated stone flooring, a double steam shower, jetted tub, Duravit double vanity, limestone counters, and a private commode. The second bedroom includes an ensuite bath, while the third and fourth share a Jack-and-Jill with walk-in closets. A laundry room with Whirlpool appliances, granite counters, and 42" cabinetry completes this level. The third floor, currently configured as a spacious home office, features vaulted ceilings, skylights, hardwood floors, and a powder room. The fully finished lower level offers soaring ceilings and versatile living areas, including a recreation room large enough for gaming, media, and entertaining with a full wet bar, beverage center, and custom built-ins. A mirrored home gym with ballet bar, a guest suite with ensuite bath, a 250+ bottle temperature-controlled wine cellar, a craft room, powder room, mudroom, and abundant storage complete this level. For the car lovers, the attached 3-car garage offers room for your favorite cars or provides additional storage. Perfectly positioned in the Southport Corridor, this remarkable home is located within the highly regarded Blaine Elementary School district. Welcome home to 3752 N. Janssen, where elegance meets everyday comfort in one of Chicago's most coveted neighborhoods.
Show More Show Less

Welcome to 3752 N. Janssen, an extraordinary residence set on a rare 62.5' x 125' lot in the heart of the Southport Corridor. The home itself sits on a 37.5'-wide lot, while the adjoining 25' x 125' landscaped side lot has been transformed into a private outdoor sanctuary. Hidden discreetly behind a privacy wall, this urban oasis features lush gardens, a tranquil water wall, a bluestone patio with built-in firepit, a sport court, and a garage roof deck-all enhanced with integrated surround sound for seamless indoor-outdoor living. A rare 3-car heated and attached garage offers effortless convenience and comfort, elevating everyday living in this remarkable city retreat. With 5 bedrooms, 4.2 baths, and 6200 SQFT of living space, this home is truly a forever home. A refined marble-floored entry opens into a dramatic two-story foyer with a curved staircase, custom millwork, coffered ceilings, and a Dennis & Leen light fixture instantly setting the tone for the elegance that defines this home. The living room exudes quiet sophistication with silk wall coverings, coffered ceilings, a gas fireplace with stone mantel, and a bay window overlooking tree-lined Janssen Street. The formal dining room, anchored by a striking David Iatesta chandelier, is enveloped in custom millwork and hand painted wallpaper with hand embroidered silk cherry blossoms, framed by antique mirrored shelving that elevates the ambiance for refined entertaining. A butler's pantry connects the dining room to the kitchen, offering granite counters, an ice maker, ample storage, and a walk-in pantry. The width of this home is evident in the kitchen and family room and maintains the same elevated aesthetic. The kitchen showcases 2-inch granite counters, abundant 42" cabinetry, professional-grade Wolf, Miele, and Sub-Zero appliances, dual sinks, and an oversized island with breakfast bar. A bright breakfast nook fills the space with natural light. The adjoining family room features custom built-ins, a limestone-surround fireplace and French doors opening to a charming terrace ideal for morning coffee or evening cocktails. Steps lead down to the landscaped backyard oasis and a roof deck above the three-car garage. A stylish powder room completes the main level. Ascending the curved staircase, four exceptional bedrooms await. The primary suite - an elegant retreat - offers vaulted ceilings, silk wall coverings, custom moldings, luxe silk draperies, hardwood floors and a custom walk-in closet with fine wood-built ins. The spa-caliber bath includes heated stone flooring, a double steam shower, jetted tub, Duravit double vanity, limestone counters, and a private commode. The second bedroom includes an ensuite bath, while the third and fourth share a Jack-and-Jill with walk-in closets. A laundry room with Whirlpool appliances, granite counters, and 42" cabinetry completes this level. The third floor, currently configured as a spacious home office, features vaulted ceilings, skylights, hardwood floors, and a powder room. The fully finished lower level offers soaring ceilings and versatile living areas, including a recreation room large enough for gaming, media, and entertaining with a full wet bar, beverage center, and custom built-ins. A mirrored home gym with ballet bar, a guest suite with ensuite bath, a 250+ bottle temperature-controlled wine cellar, a craft room, powder room, mudroom, and abundant storage complete this level. For the car lovers, the attached 3-car garage offers room for your favorite cars or provides additional storage. Perfectly positioned in the Southport Corridor, this remarkable home is located within the highly regarded Blaine Elementary School district. Welcome home to 3752 N. Janssen, where elegance meets everyday comfort in one of Chicago's most coveted neighborhoods.

Reference ID:12461021 Web ID:nyez

Listed by Carrie McCormick | @properties Christie’s International Real Estate

Contact email form: