Camas: 3
Balneario:4 completos

84 Canon View Road, Boulder, Colorado, 80302, EE. UU.

Listado por: Beth Goltz | WK Bienes Raíces

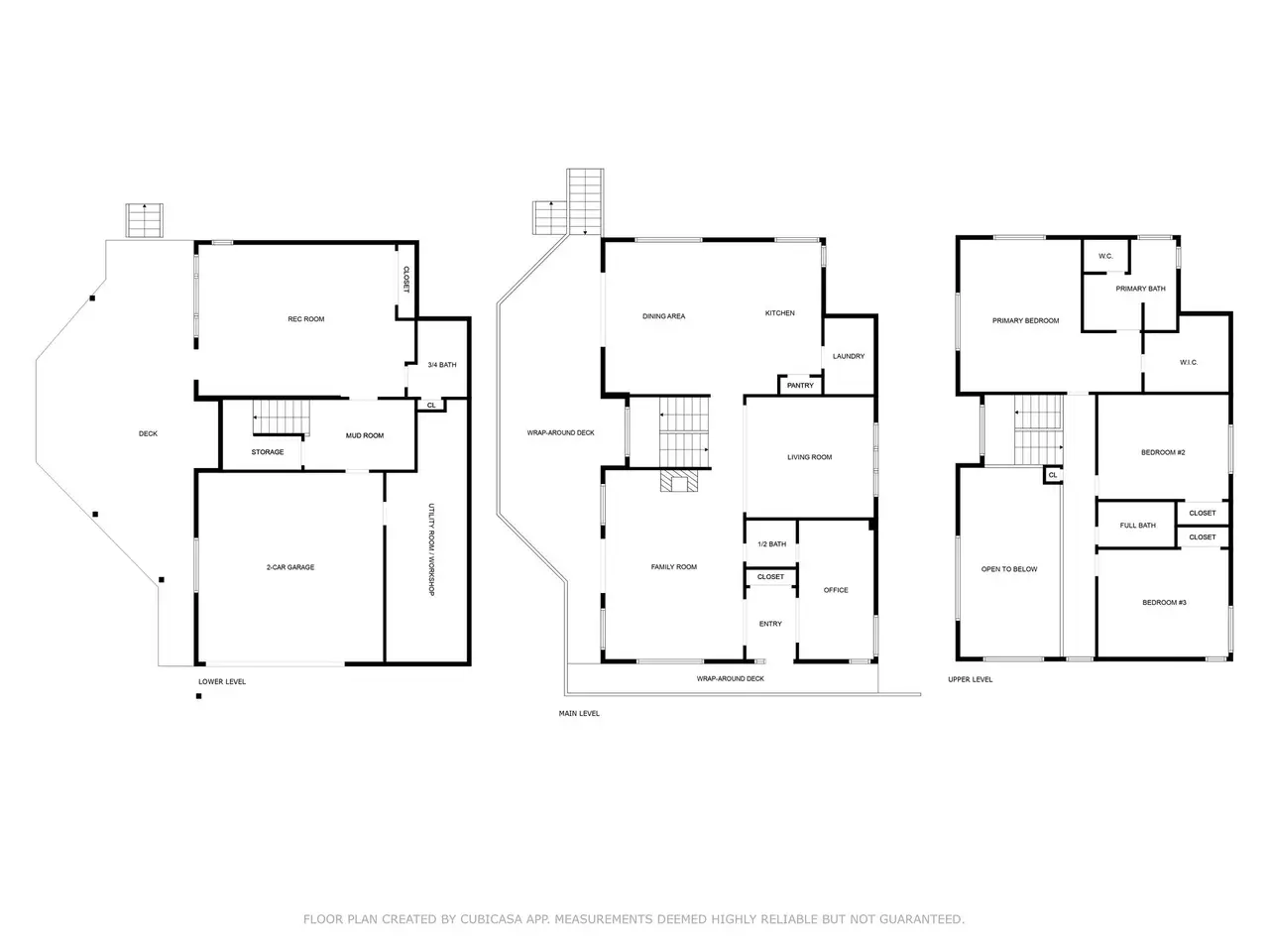
Welcome to your mountain retreat with incredible views stretching from the city of Boulder to the plains and even the Denver skyline. This 3-bed, 4-bath home is filled with natural light and offers a comfortable, functional layout designed to take full advantage of its stunning surroundings.Step inside to find vaulted ceilings, a beautiful stone fireplace, and multiple living spaces perfect for both relaxing and entertaining. The open kitchen and dining area lead directly to a spacious deck-ideal for outdoor dining and enjoying the view. Upstairs, the primary suite features large windows, a walk-in closet with laundry chute, and a spa-inspired 5-piece bath. Two additional bedrooms and a full bath complete the upper level. The finished lower level includes a flexible rec room, a 3/4 bath, and walk-out access to a second deck-perfect for enjoying the fresh mountain air.Located just a short, scenic drive to downtown Boulder, this home offers the perfect mix of privacy, natural beauty, and accessibility. Don't miss this one-of-a-kind opportunity!
Mostrar más Mostrar menos

Welcome to your mountain retreat with incredible views stretching from the city of Boulder to the plains and even the Denver skyline. This 3-bed, 4-bath home is filled with natural light and offers a comfortable, functional layout designed to take full advantage of its stunning surroundings.Step inside to find vaulted ceilings, a beautiful stone fireplace, and multiple living spaces perfect for both relaxing and entertaining. The open kitchen and dining area lead directly to a spacious deck-ideal for outdoor dining and enjoying the view. Upstairs, the primary suite features large windows, a walk-in closet with laundry chute, and a spa-inspired 5-piece bath. Two additional bedrooms and a full bath complete the upper level. The finished lower level includes a flexible rec room, a 3/4 bath, and walk-out access to a second deck-perfect for enjoying the fresh mountain air.Located just a short, scenic drive to downtown Boulder, this home offers the perfect mix of privacy, natural beauty, and accessibility. Don't miss this one-of-a-kind opportunity!

Reflejos:

  • Chimenea de piedra

  • Techos abovedados

  • Baño de 5 piezas inspirado en un spa

  • Múltiples espacios habitables

  • Spacious deck for outdoor dining

  • Walk-out access to second deck

  • Interiores llenos de luz natural

  • Flexibler rec room

  • Grandes ventanas

  • Walk-in closet with laundry chute

  • Mostrar más Mostrar menos
ID de referencia:1043876 Identificación web:xtfd

Listado por Beth Goltz | WK Bienes Raíces

Contact by phone:  3035709906
Formulario de correo electrónico de contacto:

Reflejos:

  • Chimenea de piedra

  • Techos abovedados

  • Baño de 5 piezas inspirado en un spa

  • Múltiples espacios habitables

  • Spacious deck for outdoor dining

  • Walk-out access to second deck

  • Interiores llenos de luz natural

  • Flexibler rec room

  • Grandes ventanas

  • Walk-in closet with laundry chute