Camas: 5
Balneario:4 Completos | 2 Medios

23790 Woodlynne Drive, Bingham Farms, Michigan, 48025, USA

Listado por: Matthew Barker | Max Broock Realtors

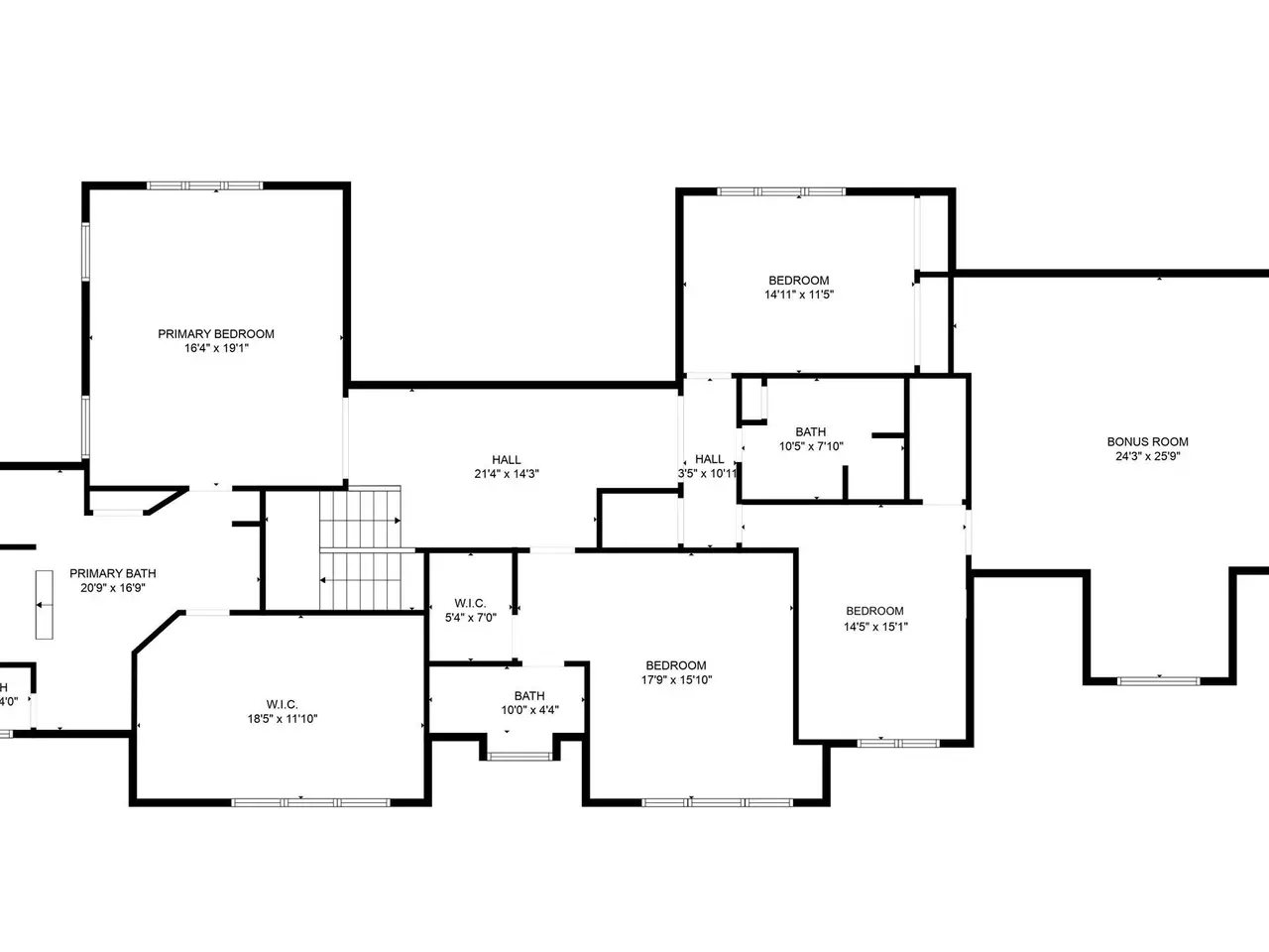
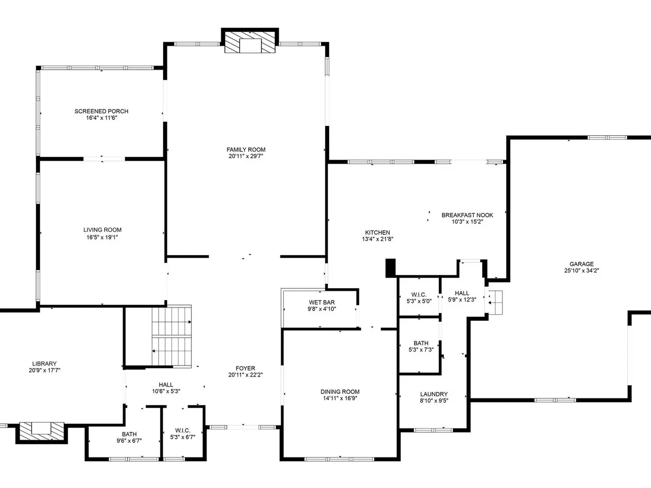
Grand estate situated on 1.47 acres at the very end of secluded, private Woodlynne Drive. Meander down the tree lined drive off of Bingham Road, to one of the most exclusive streets in town! Woodlynne Drive is ten, estate sized homes all on acre+ parcels. Wooded lot with lush landscaping flanking the driveway, providing complete privacy. Circular driveway, all brick exterior & cedar shake roof. Quality construction reflected in the details throughout. 10’ ceilings on the entry level, extensive crown molding, trim detail and hardwood floors. Solid wood front door. A true entertainer's home with the bar accessible from the foyer to serve guest drinks upon entry! 12’ ceiling in the great room with a floor to ceiling Fieldstone fireplace, flanked by floor to ceiling windows. Gourmet kitchen featuring quartzite counters, stainless steel farmhouse sink, Sub-Zero, Wolf gas range, convection oven, microwave & warming drawer and Bosch dishwasher. Breakfast nook door to back patio. Butler’s pantry with access to the bar and adjacent dining room. Stately wood paneled library, marble fireplace, built-in bookshelves & desk. Living room French doors opening to the screened in porch with beadboard ceiling. Two granite half baths on the entry level. Large primary suite, 12’x18’ walk-in closet, marble bathroom. Bedroom suite, and Jack-and-Jill bedrooms. 600 SqFt bonus room above the garage perfect for a home theater, kids playroom or exercise room. Daylight lower level, large rec room, wet bar, full bath, fifth bedroom, two flex rooms and plenty of storage. Brick paver patio. Wooded backyard has an 'Up North' feel! Three car side entry garage with 8’ garage doors. Garage EV charging electrical and can accommodate car lifts. Birmingham Schools: Bingham Farms Elementary, Berkshire Middle & Groves High. Very central location off Telegraph, access to major freeways. Exclusivity at its finest!
Mostrar más Mostrar menos

Grand estate situated on 1.47 acres at the very end of secluded, private Woodlynne Drive. Meander down the tree lined drive off of Bingham Road, to one of the most exclusive streets in town! Woodlynne Drive is ten, estate sized homes all on acre+ parcels. Wooded lot with lush landscaping flanking the driveway, providing complete privacy. Circular driveway, all brick exterior & cedar shake roof. Quality construction reflected in the details throughout. 10’ ceilings on the entry level, extensive crown molding, trim detail and hardwood floors. Solid wood front door. A true entertainer's home with the bar accessible from the foyer to serve guest drinks upon entry! 12’ ceiling in the great room with a floor to ceiling Fieldstone fireplace, flanked by floor to ceiling windows. Gourmet kitchen featuring quartzite counters, stainless steel farmhouse sink, Sub-Zero, Wolf gas range, convection oven, microwave & warming drawer and Bosch dishwasher. Breakfast nook door to back patio. Butler’s pantry with access to the bar and adjacent dining room. Stately wood paneled library, marble fireplace, built-in bookshelves & desk. Living room French doors opening to the screened in porch with beadboard ceiling. Two granite half baths on the entry level. Large primary suite, 12’x18’ walk-in closet, marble bathroom. Bedroom suite, and Jack-and-Jill bedrooms. 600 SqFt bonus room above the garage perfect for a home theater, kids playroom or exercise room. Daylight lower level, large rec room, wet bar, full bath, fifth bedroom, two flex rooms and plenty of storage. Brick paver patio. Wooded backyard has an 'Up North' feel! Three car side entry garage with 8’ garage doors. Garage EV charging electrical and can accommodate car lifts. Birmingham Schools: Bingham Farms Elementary, Berkshire Middle & Groves High. Very central location off Telegraph, access to major freeways. Exclusivity at its finest!

Recorrido a pie
ID de referencia:20240045927 Identificación web:whkd

Listado por Matthew Barker | Max Broock Realtors

Contact by phone:  248-807-2232
Formulario de correo electrónico de contacto: