Beds:1
Baths:6 Full | 1 Half

Ball Ground, Georgia, USA

Listed by: Chad Davis | Ansley Real Estate - Christie’s International Real Estate

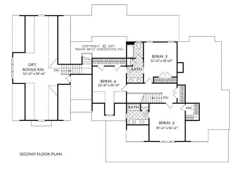
Welcome to The Gulfport, a thoughtfully designed home plan by Frank Betz & Associates, to be built by Elevation Building Co. on Lot 48 in the exceptional gated community of Sanctuaire Farms in Ball Ground, Georgia. This stunning home sits on five private acres and offers approximately 3,000 square feet of living space. With four bedrooms and three and a half bathrooms, it provides the ideal layout for main-level living. The spacious primary suite is located on the main level, and the open-concept design seamlessly flows out to expansive covered porches, perfect for enjoying the serene, pastoral surroundings. Main Level is 2,000 square feet, upper level is 1,000 square feet, bonus room is 588 square feet. Located just minutes from downtown Ball Ground, this home is part of a 460-acre gated community designed for those who value purpose, privacy, and a connection to the land. Sanctuaire Farms is a visionary community built around the principles of faith, family, and community. The neighborhood offers 54 estate-sized lots ranging from 5 to 20+ acres, a curated group of builders, and a fully integrated farm-based amenity.
Show More Show Less

Welcome to The Gulfport, a thoughtfully designed home plan by Frank Betz & Associates, to be built by Elevation Building Co. on Lot 48 in the exceptional gated community of Sanctuaire Farms in Ball Ground, Georgia. This stunning home sits on five private acres and offers approximately 3,000 square feet of living space. With four bedrooms and three and a half bathrooms, it provides the ideal layout for main-level living. The spacious primary suite is located on the main level, and the open-concept design seamlessly flows out to expansive covered porches, perfect for enjoying the serene, pastoral surroundings. Main Level is 2,000 square feet, upper level is 1,000 square feet, bonus room is 588 square feet. Located just minutes from downtown Ball Ground, this home is part of a 460-acre gated community designed for those who value purpose, privacy, and a connection to the land. Sanctuaire Farms is a visionary community built around the principles of faith, family, and community. The neighborhood offers 54 estate-sized lots ranging from 5 to 20+ acres, a curated group of builders, and a fully integrated farm-based amenity.

Highlights:

  • Custom cabinetry

  • Expansive covered porches

  • Open-concept layout

  • Pool house

  • Barn

  • Chicken coop

  • Show More Show Less
Walk-Thru
Reference ID:7644388 Web ID:qdwh

Listed by Chad Davis | Ansley Real Estate - Christie’s International Real Estate

Contact email form:

Highlights:

  • Custom cabinetry

  • Expansive covered porches

  • Open-concept layout

  • Pool house

  • Barn

  • Chicken coop

Continue Exploring Related Collections