Expansive Property - Renowned Artist Ralph Wolfe Cowan's Estate
243 29th Street, West Palm Beach, Florida, 33407, USA
Listed by: Pamela O'Connor | William Raveis Real Estate
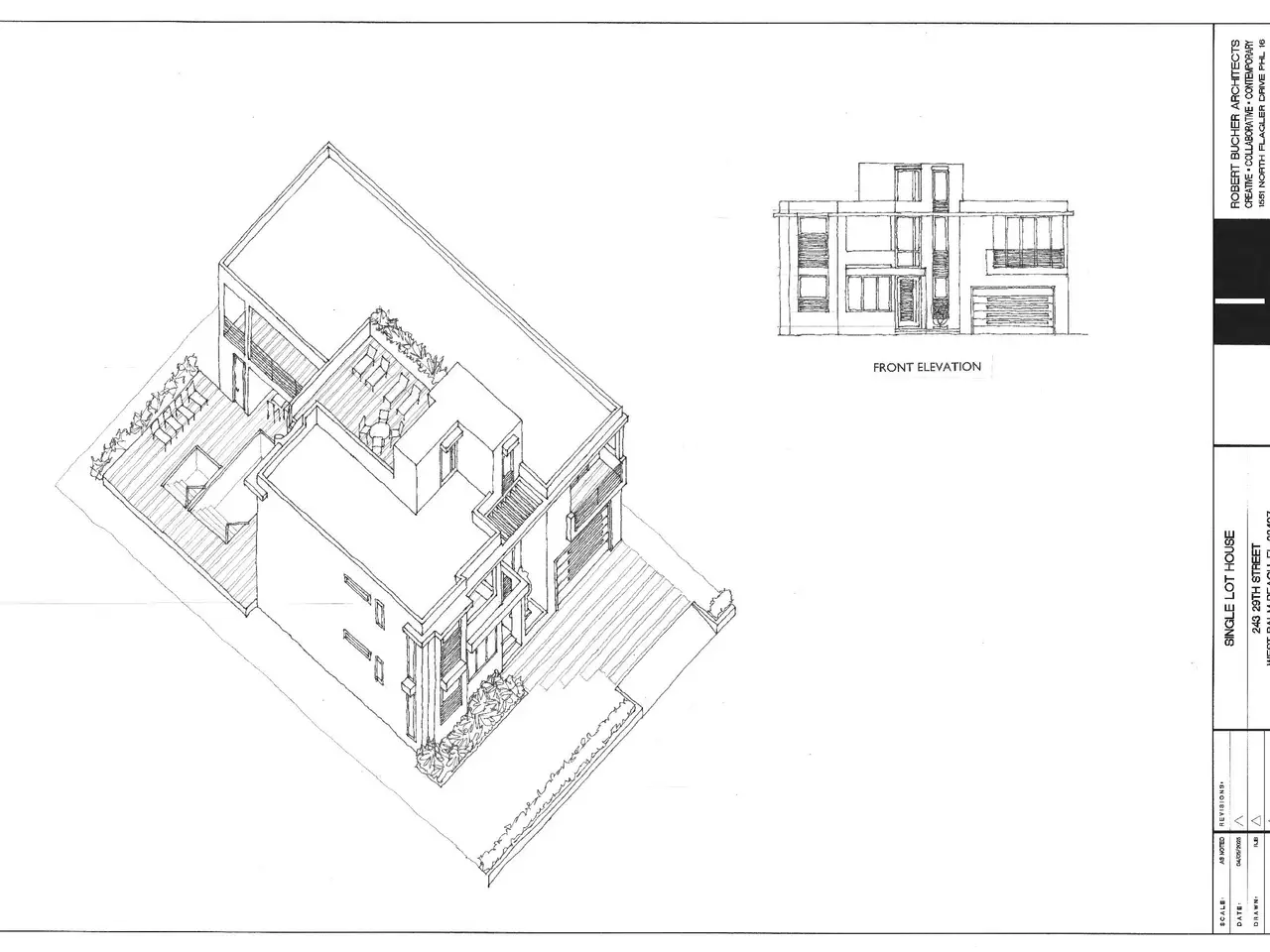
Rare opportunity to acquire renowned artist Ralph Wolfe Cowan's estate. Ideally located, this lake block residence in Northwood Shores is adjacent to prestigious N Flagler Drive. Expansive property includes 25,700 square feet (.59-acre) with 224' of street frontage. Ready for renovations, subdivide (minimum 6,000 SF with 60' frontage) or new build. Located near Northwood Village with galleries, shops and restaurants. Currie Park waterfront redevelopment under way. Architectural renderings courtesy of Robert Bucher Architects PA, located in West Palm Beach. The firm exclusively focuses on luxury contemporary residential design. Inquire for specifics.
Highlights:
- Renowned artist Ralph Wolfe Cowan's estate
- Adjacent to prestigious N Flagler Drive
- Expansive property with 224' street frontage
Listed by Pamela O'Connor | William Raveis Real Estate
Highlights:
- Renowned artist Ralph Wolfe Cowan's estate
- Adjacent to prestigious N Flagler Drive
- Expansive property with 224' street frontage
- Architectural renderings by Robert Bucher Architects PA
- Luxury contemporary residential design
 
                     
                     
                     
                     
                     
                     
                     
                     
                     
             
                     
                     
        
    
           
        
    
           
        
    
           
        
    
          