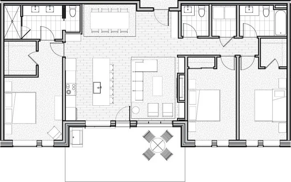
Beds: 3
Baths: 2 Full | 1 Half

1550 AMBLE DRIVE Mount Werner Circle #108, Steamboat Springs, Colorado, 80487, USA

Listed by: Joseph Cashen | Slifer Smith & Frampton Real Estate

The Amble is a new, all-electric, residential community located steps to Steamboat Resortâ??s front door, with shopping, dining, and alpine trails nearby. Steamboat Resort recently completed over $200m in improvements at the resort, and The Amble will be the first new property to be built at the base area in over 15 years. Efficient and sustainable building design makes the time spent indoors just as inspiring as the time spent outdoors. Every element in the residence serves a purpose, contributing to purpose-built, experiential spaces tailored for the needs of modern outdoor families during their indoor moments. Onsite amenities at The Amble include a outdoor heated pool and hot tub, game room and guest lounge, fitness center, secure owner storage, underground parking garage with EV charging, and spacious ski & snowboard lockers in The Den. Residence #108 is a first-floor residence offering southern orientation and a walkout patio. The open, flowing great room seamlessly melds the kitchen, dining and living spaces. This home features panoramic triple-pane windows throughout, and an all-electric water vapor fireplace in the living area adds year-round ambience and optional heating. The kitchen features an induction cooktop, wall oven, and island sink. A spacious outdoor patio is adjacent to the great room and wired for an electric grill. The large primary suite includes a walk-in closet and ensuite bath. There are two additional bedrooms and one more bathroom, along with a powder bath and laundry room with full-size side-by-side washer and dryer.
Show More Show Less

The Amble is a new, all-electric, residential community located steps to Steamboat Resortâ??s front door, with shopping, dining, and alpine trails nearby. Steamboat Resort recently completed over $200m in improvements at the resort, and The Amble will be the first new property to be built at the base area in over 15 years. Efficient and sustainable building design makes the time spent indoors just as inspiring as the time spent outdoors. Every element in the residence serves a purpose, contributing to purpose-built, experiential spaces tailored for the needs of modern outdoor families during their indoor moments. Onsite amenities at The Amble include a outdoor heated pool and hot tub, game room and guest lounge, fitness center, secure owner storage, underground parking garage with EV charging, and spacious ski & snowboard lockers in The Den. Residence #108 is a first-floor residence offering southern orientation and a walkout patio. The open, flowing great room seamlessly melds the kitchen, dining and living spaces. This home features panoramic triple-pane windows throughout, and an all-electric water vapor fireplace in the living area adds year-round ambience and optional heating. The kitchen features an induction cooktop, wall oven, and island sink. A spacious outdoor patio is adjacent to the great room and wired for an electric grill. The large primary suite includes a walk-in closet and ensuite bath. There are two additional bedrooms and one more bathroom, along with a powder bath and laundry room with full-size side-by-side washer and dryer.

Highlights:

  • Panoramic triple-pane windows

  • All-electric water vapor fireplace

  • Induction cooktop and wall oven

  • Walk-in closet in primary suite

  • Outdoor heated pool and hot tub

  • Fitness center

  • Secure owner storage

  • Southern orientation with walkout patio

  • Show More Show Less
Reference ID: S1048521 Web ID: dqtl

Listed by Joseph Cashen | Slifer Smith & Frampton Real Estate

Contact by phone:  9705109697
Contact email form:

Highlights:

  • Panoramic triple-pane windows

  • All-electric water vapor fireplace

  • Induction cooktop and wall oven

  • Walk-in closet in primary suite

  • Outdoor heated pool and hot tub

  • Fitness center

  • Secure owner storage

  • Southern orientation with walkout patio

Continue Exploring Related Collections