Beds: 5
Baths: 4 Full | 1 Half

1172 Seville Lane Northeast, St. Petersburg, Florida, 33704, USA

Listed by: Scott Wolfe | Smith & Associates Real Estate

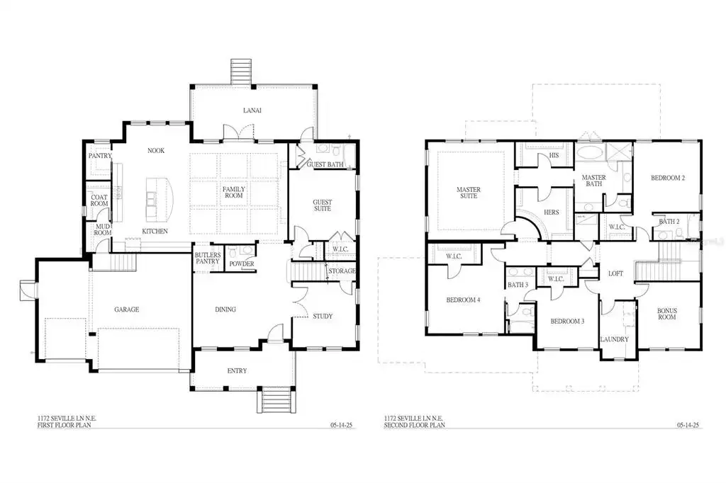
Under Construction. Under Construction – Estimated Completion: July 2026. Introducing a spectacular new construction opportunity by one of Tampa Bay’s most respected homebuilders — Mobley Homes Custom. Situated in the highly sought-after neighborhood of Snell Isle, this exceptional single-family residence is just moments from the tranquil waters of Tampa Bay and surrounded by multi-million dollar estates. Boasting 4,111 square feet of luxurious living space, this home is thoughtfully designed with 5 bedrooms, 4.5 bathrooms, a bonus room, formal dining room, a grand family room, a mudroom, and a 3-car attached garage — a truly comprehensive layout that meets the needs of today’s discerning buyer. The heart of the home is a chef’s dream kitchen, featuring a large island, Wolf & Sub-Zero appliances, quartz countertops, a walk-in pantry, and an elegant butler’s pantry. French doors connect the expansive family room to the covered outdoor living area, perfect for seamless indoor-outdoor entertaining. Retreat to the sprawling primary suite, complete with dual walk-in closets and a spa-inspired bathroom featuring a soaking tub and walk-in shower. Designed to embrace the Florida lifestyle, the home also includes a heated in-ground pool and spa, ideal for year-round enjoyment. Additional premium features include:10’ ceilings throughout, Impact-resistant windows, Engineered hardwood flooring, Low-voltage pre-wiring for a security system, Pavered driveway and porches. Every detail has been carefully curated for luxury, comfort, and lasting value. Photos and renderings are for illustrative purposes only and may not reflect final selections. A 10% deposit is required to secure your future home with Mobley Homes Custom, LLC. Please note: Images shown are of the same model; finishes and materials may vary based on the design book for this home. Built with peace of mind by Mobley Homes Custom LLC, Tampa Bay’s premier builder. All homes are owned entirely by Mobley Homes Custom LLC. Mobley Homes Custom LLC does not build for third-party investors on their lots, and your home will be sold directly to you, ensuring a smooth and accountable process. Should any warranty needs arise, you’ll work with the builder directly—not a one-off investor or empty LLC—providing confidence, long-term support, and superior quality. As a Buyer in the State of Florida, it is important to purchase your new home from the company that pulled the permit and built your home for you.
Show More Show Less

Under Construction. Under Construction – Estimated Completion: July 2026. Introducing a spectacular new construction opportunity by one of Tampa Bay’s most respected homebuilders — Mobley Homes Custom. Situated in the highly sought-after neighborhood of Snell Isle, this exceptional single-family residence is just moments from the tranquil waters of Tampa Bay and surrounded by multi-million dollar estates. Boasting 4,111 square feet of luxurious living space, this home is thoughtfully designed with 5 bedrooms, 4.5 bathrooms, a bonus room, formal dining room, a grand family room, a mudroom, and a 3-car attached garage — a truly comprehensive layout that meets the needs of today’s discerning buyer. The heart of the home is a chef’s dream kitchen, featuring a large island, Wolf & Sub-Zero appliances, quartz countertops, a walk-in pantry, and an elegant butler’s pantry. French doors connect the expansive family room to the covered outdoor living area, perfect for seamless indoor-outdoor entertaining. Retreat to the sprawling primary suite, complete with dual walk-in closets and a spa-inspired bathroom featuring a soaking tub and walk-in shower. Designed to embrace the Florida lifestyle, the home also includes a heated in-ground pool and spa, ideal for year-round enjoyment. Additional premium features include:10’ ceilings throughout, Impact-resistant windows, Engineered hardwood flooring, Low-voltage pre-wiring for a security system, Pavered driveway and porches. Every detail has been carefully curated for luxury, comfort, and lasting value. Photos and renderings are for illustrative purposes only and may not reflect final selections. A 10% deposit is required to secure your future home with Mobley Homes Custom, LLC. Please note: Images shown are of the same model; finishes and materials may vary based on the design book for this home. Built with peace of mind by Mobley Homes Custom LLC, Tampa Bay’s premier builder. All homes are owned entirely by Mobley Homes Custom LLC. Mobley Homes Custom LLC does not build for third-party investors on their lots, and your home will be sold directly to you, ensuring a smooth and accountable process. Should any warranty needs arise, you’ll work with the builder directly—not a one-off investor or empty LLC—providing confidence, long-term support, and superior quality. As a Buyer in the State of Florida, it is important to purchase your new home from the company that pulled the permit and built your home for you.

Highlights:

  • Chef's dream kitchen with Wolf & Sub-Zero appliances

  • Spa-inspired bathroom with soaking tub and walk-in shower

  • Expansive family room with French doors

  • Heated in-ground pool and spa

  • 10' ceilings throughout

  • Impact-resistant windows

  • Engineered hardwood flooring

  • Low-voltage pre-wiring for security system

  • Pavered driveway and porches

  • Show More Show Less
Reference ID: TB8388046 Web ID: wupx

Listed by Scott Wolfe | Smith & Associates Real Estate

Contact by phone:  813-601-5751
Contact email form:

Highlights:

  • Chef's dream kitchen with Wolf & Sub-Zero appliances

  • Spa-inspired bathroom with soaking tub and walk-in shower

  • Expansive family room with French doors

  • Heated in-ground pool and spa

  • 10' ceilings throughout

  • Impact-resistant windows

  • Engineered hardwood flooring

  • Low-voltage pre-wiring for security system

  • Pavered driveway and porches