Rare Oceanside Beachfront Opportunity
1121 South Pacific Street, Oceanside, California, 92054, USA
Listed by: Eileen Anderson | Willis Allen Real Estate
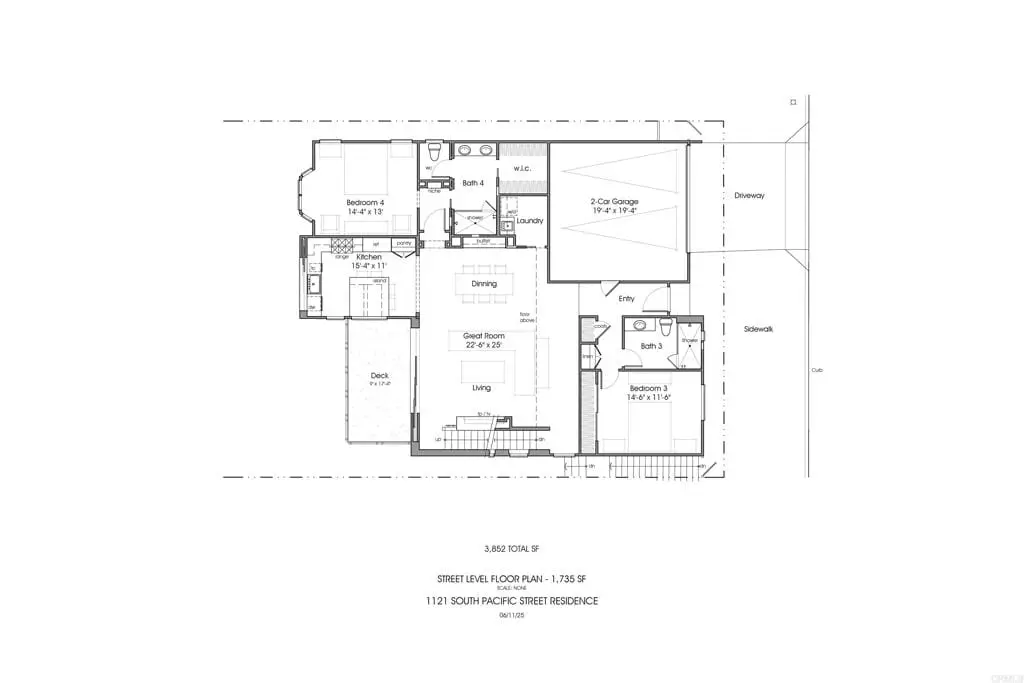
Surf, Sand and Sunsets! Enjoy the large decks or your own huge 50 foot wide sand backyard, yes your very own beach! Rare Oceanside Beachfront Opportunity with FULLY APPROVED and TRANSFERABLE INTERIOR/EXTERIOR REMODEL PLANS! THIS IS NOT A GROUND UP PROJECT! Own a piece of the California coast with this stunning detached home on a prime beachfront lot in Oceanside. With 3852 square feet of living space, this property offers a rare chance to build your dream coastal retreat. The fully approved and transferable plans allow you to pull permits and start construction immediately, while the completed interior demo provides a blank canvas to bring your vision to life. Perfectly positioned for those seeking their ultimate beachfront home, this property offers unparalleled potential. Contact us today for more information on this exceptional opportunity!
Highlights:
- Beachfront location
- 3852 sqft living space
- Fully approved plans
Listed by Eileen Anderson | Willis Allen Real Estate
Highlights:
- Beachfront location
- 3852 sqft living space
- Fully approved plans
- Prime coastal lot
 
                     
                     
                     
                     
                     
                     
                     
                     
                     
             
                     
                     
        
    
            
     
        
    
            
     
        
    
           
        
    
           
        
    
          