Residential
2047 Boatmans Ridge Road, Morristown, Tennessee, 37814, USA
Listed by: CRYE-LEIKE Real Estate Services
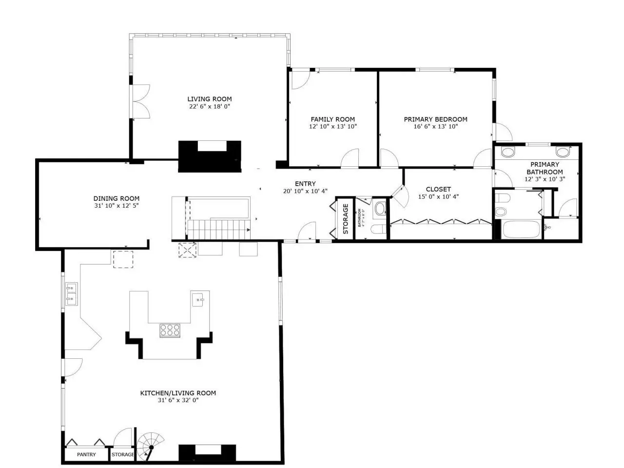
Experience unparalleled craftsmanship and timeless elegance in this custom-built home boasting over 6,500 square feet of luxurious living space. Perfectly positioned on 5 scenic acres, this home captures spectacular panoramic views of Cherokee Lake, the surrounding mountains, and the entire Lakeway area. Inside, you'll find 4 bedrooms and 3.5 baths, along with open and inviting living areas that showcase the home's attention to detail. The expansive gourmet kitchen offers an abundance of custom cabinetry and generous workspace?ideal for the culinary enthusiast. Just off the kitchen is a warm and inviting family room, centered around the first of three stunning stone wood-burning fireplaces. The main living area features walls of windows that frame the breathtaking lake views, creating a light-filled retreat perfect for entertaining or relaxing. The hand-carved mantel above the grand stone fireplace is a true statement piece, blending rustic charm with refined elegance. The primary suite on the main level is a sanctuary of its own, complete with a massive walk-in closet with custom cabinetry and a luxurious en-suite bath featuring double vanities, a large soaking tub, bidet, and a steam shower. Wake each morning to stunning lake and mountain vistas right from your bedroom windows. The finished basement expands your living space with three additional bedrooms, two full bathrooms, a large den with the third stone fireplace, and a spacious, well-equipped laundry room. From the craftsmanship throughout to the breathtaking views in every direction, this home offers the best of East Tennessee living. Centrally located in Morristown, you'll enjoy easy access to shopping, dining, and recreation?all while savoring the privacy and serenity of your own estate. This is a one-of-a-kind property?call today to schedule your private showing!
Highlights:
Custom cabinetry
Stunning stone wood-burning fireplaces
Lake and mountain vistas
Contact Agent | CRYE-LEIKE Real Estate Services
Highlights:
Custom cabinetry
Stunning stone wood-burning fireplaces
Lake and mountain vistas
Hand-carved mantel
Luxurious en-suite bath
Walls of windows with lake views
Expansive gourmet kitchen
Spacious finished basement
Scenic 5-acre estate
Central Morristown location