Beds: 5
Baths: 3 Full | 2 Half

507 Kenilworth Avenue, Kenilworth, Illinois, 60043, USA

Listed by: Megan Mawicke Bradley | @properties Christie’s International Real Estate

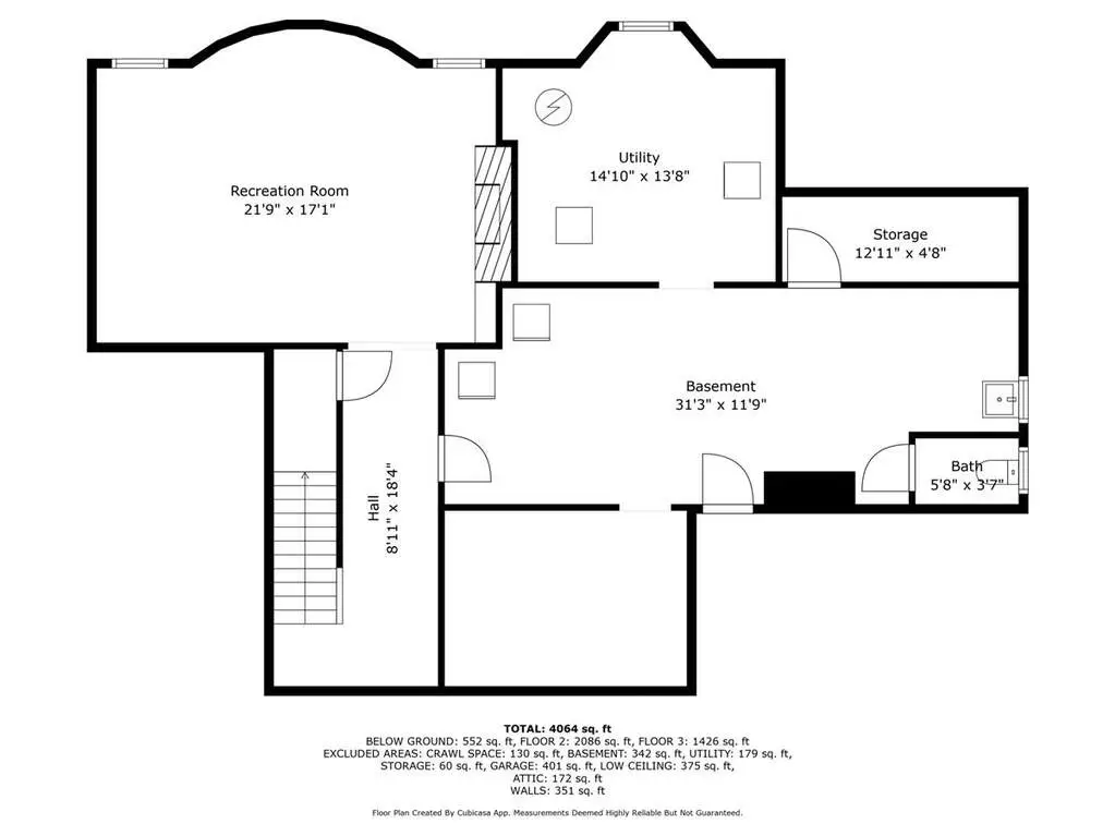
A Kenilworth GEM...deceptively spacious and full of character, this gorgeous Lannon stone home offers incredible versatility and timeless craftsmanship. With two primary suite options...one on the first floor and one upstairs...you can customize the home to fit your lifestyle! Right when you walk in the home you will be WOWED by the grand living room with a gorgeous floor-to-ceiling window overlooking the professionally landscaped, private backyard, exquisite millworker a statement fireplace. The formal dining room is perfect for entertaining with beautiful built-in cabinets. The cook's kitchen features high-end appliances, an eat-in area, and seamlessly flows into the inviting family room with direct access to the spacious patio. A large first-floor office/den provides the flexibility to work or relax at home. The first-floor primary suite offers ample closets and an ensuite bath, ideal for guests or an in-law suite, while convenient first-floor laundry adds ease. On the second floor...four generously sized bedrooms including another primary suite, plus an additional ensuite bedroom. A large unfinished room, a huge cedar closet, and attic space above the garage - leave it as is - or it's perfect for expansion to create a dream suite with luxurious bath and walk-in closet, a 2nd family room or a studio - whatever you want! The lower level features a rec room and an abundance of storage. You will love entertaining outside on the large patio and enjoying the privacy of the gorgeous backyard, and recreational fun on the sport court! Two-car attached garage. A+ location...just minutes from Award-Winning Joseph Sears School (JK-8), New Trier High School, the Metra, the beach, newly renovated Plaza Del Lago shopping and dining. Truly a unique home with character and flexibility - YOU WON'T FIND EVERY DAY!
Show More Show Less

A Kenilworth GEM...deceptively spacious and full of character, this gorgeous Lannon stone home offers incredible versatility and timeless craftsmanship. With two primary suite options...one on the first floor and one upstairs...you can customize the home to fit your lifestyle! Right when you walk in the home you will be WOWED by the grand living room with a gorgeous floor-to-ceiling window overlooking the professionally landscaped, private backyard, exquisite millworker a statement fireplace. The formal dining room is perfect for entertaining with beautiful built-in cabinets. The cook's kitchen features high-end appliances, an eat-in area, and seamlessly flows into the inviting family room with direct access to the spacious patio. A large first-floor office/den provides the flexibility to work or relax at home. The first-floor primary suite offers ample closets and an ensuite bath, ideal for guests or an in-law suite, while convenient first-floor laundry adds ease. On the second floor...four generously sized bedrooms including another primary suite, plus an additional ensuite bedroom. A large unfinished room, a huge cedar closet, and attic space above the garage - leave it as is - or it's perfect for expansion to create a dream suite with luxurious bath and walk-in closet, a 2nd family room or a studio - whatever you want! The lower level features a rec room and an abundance of storage. You will love entertaining outside on the large patio and enjoying the privacy of the gorgeous backyard, and recreational fun on the sport court! Two-car attached garage. A+ location...just minutes from Award-Winning Joseph Sears School (JK-8), New Trier High School, the Metra, the beach, newly renovated Plaza Del Lago shopping and dining. Truly a unique home with character and flexibility - YOU WON'T FIND EVERY DAY!

Highlights:

  • Lannon stone exterior

  • Floor-to-ceiling windows

  • Statement fireplace

  • High-end appliances

  • Spacious patio

  • First-floor office/den

  • Generously sized bedrooms

  • Cedar closet

  • Recreational sport court

  • Professional landscaping

  • Show More Show Less
Walk-Thru
Reference ID: 12466048 Web ID: etme

Listed by Megan Mawicke Bradley | @properties Christie’s International Real Estate

Contact email form:

Highlights:

  • Lannon stone exterior

  • Floor-to-ceiling windows

  • Statement fireplace

  • High-end appliances

  • Spacious patio

  • First-floor office/den

  • Generously sized bedrooms

  • Cedar closet

  • Recreational sport court

  • Professional landscaping