Beds: 5
Baths: 6 Full | 2 Half

55 Prospect Avenue, Highland Park, Illinois, 60035, USA

Listed by: Carrie McCormick | @properties Christie’s International Real Estate

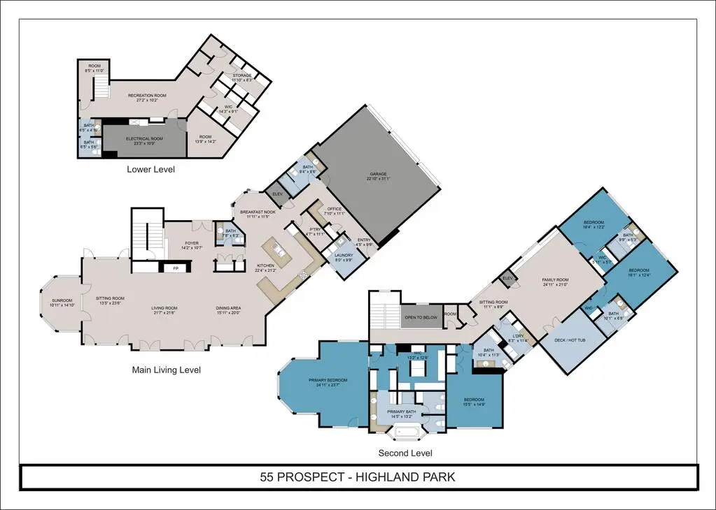
Welcome to 55 Prospect Avenue-where every day feels like a seaside escape. Perfectly sited on 1.5 acres with an extraordinary 175 feet of private Lake Michigan beachfront, this coastal-inspired estate offers a rare blend of architectural elegance, resort-style living, and timeless design. Evoking the relaxed sophistication of the Hamptons, this is Highland Park's crown jewel. Designed and built by some of the most respected names in luxury construction and recently reimagined to elevate both form and function, the residence spans over 9,000 square feet of masterfully crafted living space. Landscape architect Bill Eiserman reengineered the bluff and curated the grounds into a private, protected sanctuary with lush, purposeful design and uninterrupted lake views. Inside, floor-to-ceiling windows frame panoramic, ever-changing views of the lake, infusing every room with natural light and the calm of the shoreline. The main floor was designed for seamless entertaining and relaxed living, with soft, organic tones and a thoughtful layout that blends openness with intimacy. At the heart of the home lies the showpiece kitchen-featuring butcher block and marble countertops, professional-grade appliances, and expansive prep and serving areas ideal for both culinary pursuits and gathering with friends. The main residence includes 4 bedrooms and 5.2 baths, each beautifully appointed. The primary suite is a serene retreat, offering peaceful morning lake views at every turn, and an ambiance that invites rest, renewal, and reflection. An elevator services all floors, offering ease and accessibility throughout the home. Just steps away, a guest house mirrors the architecture and charm of the main home and includes a bedroom, full bath, exercise studio, and recreation space. The breezeway connecting the two structures features twin porch swings-an unexpected and whimsical detail that invites quiet reflection and a moment to take in the breeze off the lake. The outdoor living experience is just as exceptional. An outdoor shower adds convenience and practicality for those perfect beach days. The expansive, landscaped backyard features a beautiful stone patio for al fresco dining, and a built-in fire pit overlooking lush gardens and the serene blue waters beyond, creating the perfect setting for intimate gatherings or tranquil evenings under the stars. Car enthusiasts will appreciate the oversized 6-car garage, providing ample space for a prized collection or weekend cruisers. This is more than a home-it's a lifestyle of privacy, beauty, and effortless luxury, just minutes from the heart of Highland Park and world-class schools and amenities.
Show More Show Less

Welcome to 55 Prospect Avenue-where every day feels like a seaside escape. Perfectly sited on 1.5 acres with an extraordinary 175 feet of private Lake Michigan beachfront, this coastal-inspired estate offers a rare blend of architectural elegance, resort-style living, and timeless design. Evoking the relaxed sophistication of the Hamptons, this is Highland Park's crown jewel. Designed and built by some of the most respected names in luxury construction and recently reimagined to elevate both form and function, the residence spans over 9,000 square feet of masterfully crafted living space. Landscape architect Bill Eiserman reengineered the bluff and curated the grounds into a private, protected sanctuary with lush, purposeful design and uninterrupted lake views. Inside, floor-to-ceiling windows frame panoramic, ever-changing views of the lake, infusing every room with natural light and the calm of the shoreline. The main floor was designed for seamless entertaining and relaxed living, with soft, organic tones and a thoughtful layout that blends openness with intimacy. At the heart of the home lies the showpiece kitchen-featuring butcher block and marble countertops, professional-grade appliances, and expansive prep and serving areas ideal for both culinary pursuits and gathering with friends. The main residence includes 4 bedrooms and 5.2 baths, each beautifully appointed. The primary suite is a serene retreat, offering peaceful morning lake views at every turn, and an ambiance that invites rest, renewal, and reflection. An elevator services all floors, offering ease and accessibility throughout the home. Just steps away, a guest house mirrors the architecture and charm of the main home and includes a bedroom, full bath, exercise studio, and recreation space. The breezeway connecting the two structures features twin porch swings-an unexpected and whimsical detail that invites quiet reflection and a moment to take in the breeze off the lake. The outdoor living experience is just as exceptional. An outdoor shower adds convenience and practicality for those perfect beach days. The expansive, landscaped backyard features a beautiful stone patio for al fresco dining, and a built-in fire pit overlooking lush gardens and the serene blue waters beyond, creating the perfect setting for intimate gatherings or tranquil evenings under the stars. Car enthusiasts will appreciate the oversized 6-car garage, providing ample space for a prized collection or weekend cruisers. This is more than a home-it's a lifestyle of privacy, beauty, and effortless luxury, just minutes from the heart of Highland Park and world-class schools and amenities.

Highlights:

  • Private 175ft Lake Michigan beachfront

  • Panoramic lake views throughout

  • Showpiece kitchen with marble countertops

  • Elevator servicing all floors

  • Guest house with bedroom, bath, and studio

  • Outdoor shower and stone patio for al fresco dining

  • Built-in fire pit overlooking lush gardens

  • Oversized 6-car garage for car enthusiasts

  • Landscape architect-designed grounds for privacy

  • Resort-style living with world-class amenities

  • Show More Show Less
Walk-Thru
Reference ID: 12468025 Web ID: nugs

Listed by Carrie McCormick | @properties Christie’s International Real Estate

Contact email form:

Highlights:

  • Private 175ft Lake Michigan beachfront

  • Panoramic lake views throughout

  • Showpiece kitchen with marble countertops

  • Elevator servicing all floors

  • Guest house with bedroom, bath, and studio

  • Outdoor shower and stone patio for al fresco dining

  • Built-in fire pit overlooking lush gardens

  • Oversized 6-car garage for car enthusiasts

  • Landscape architect-designed grounds for privacy

  • Resort-style living with world-class amenities

Continue Exploring Related Collections