Beds: 3
Baths: 3 Full | 1 Half

1 Patterson Valley Road, Grass Valley, California, 95949, USA

Listed by: Steve Carpenter | Windermere Signature Properties

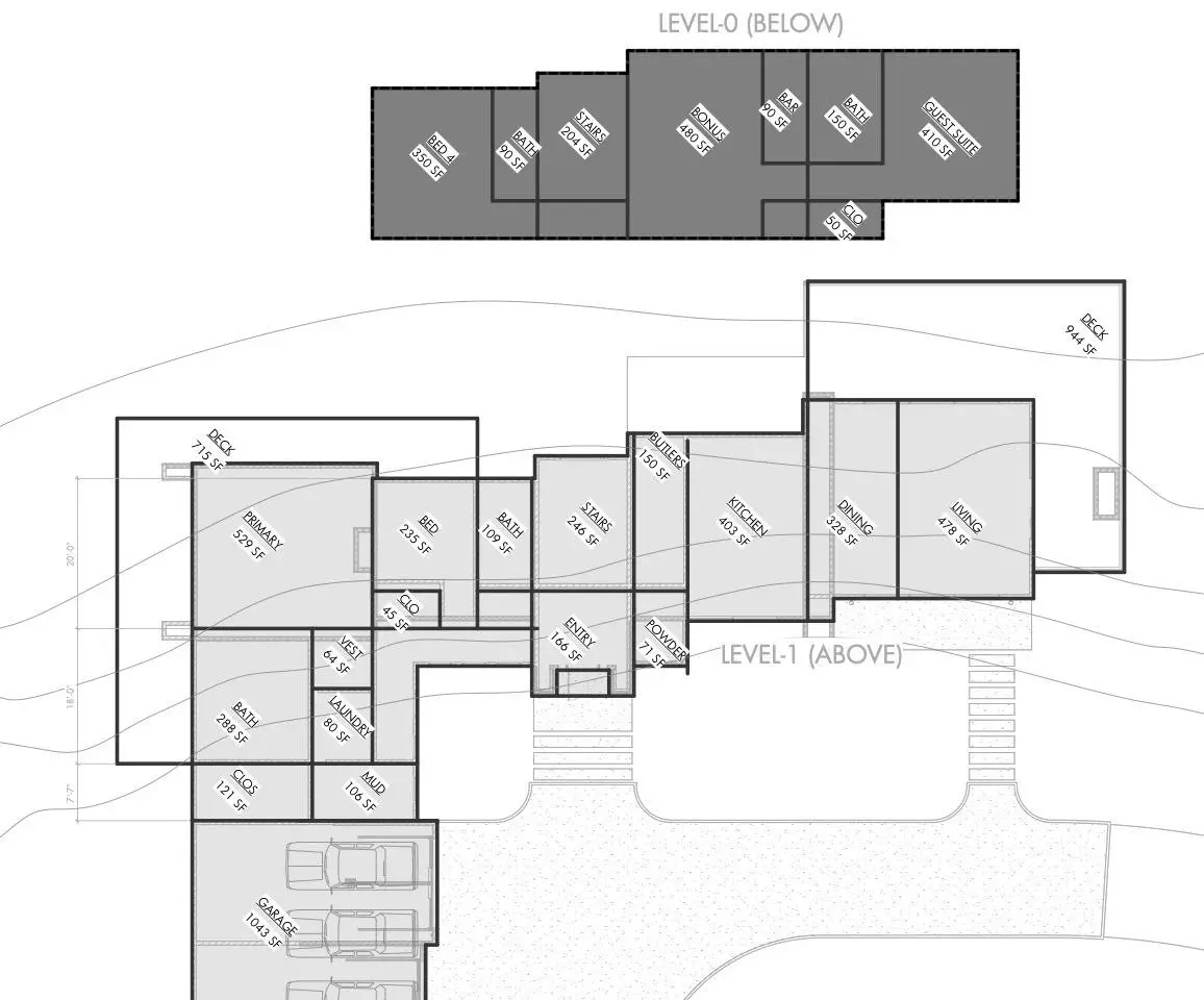
This beautiful NEW 93.3-acre residence at the end of Patterson Valley Road offers an incredible panoramic view of the local Nevada County foothills and the Northern Sacramento Valley! Awaiting completion by mid 2026, this well designed 3-bedroom, 3.5-bathroom home boasts a spacious 4250 sqft floor plan that opens to expansive decking overlooking your own private estate style property. The property boasts about 800' of creek frontage, a 30 GPM well at the cleared building site, an additional cleared building site with its own well, and is zoned AG-20, offering a rare opportunity to expand your vision across this exclusive landscape. Adjacent to a similar parcel available for purchase as well. Designer finishes have been selected, but there is still time to put your special touches on this gorgeous home!
Show More Show Less

This beautiful NEW 93.3-acre residence at the end of Patterson Valley Road offers an incredible panoramic view of the local Nevada County foothills and the Northern Sacramento Valley! Awaiting completion by mid 2026, this well designed 3-bedroom, 3.5-bathroom home boasts a spacious 4250 sqft floor plan that opens to expansive decking overlooking your own private estate style property. The property boasts about 800' of creek frontage, a 30 GPM well at the cleared building site, an additional cleared building site with its own well, and is zoned AG-20, offering a rare opportunity to expand your vision across this exclusive landscape. Adjacent to a similar parcel available for purchase as well. Designer finishes have been selected, but there is still time to put your special touches on this gorgeous home!

Highlights:

  • Panoramic views of local foothills

  • Expansive decking overlooking private estate

  • 800' of creek frontage

  • Zoned AG-20 for exclusive landscape

  • Designer finishes selected

  • Adjacent parcel available for purchase

  • Show More Show Less
Walk-Thru
Reference ID: 225037725 Web ID: cupf

Listed by Steve Carpenter | Windermere Signature Properties

Contact by phone:  530-368-0984
Contact email form:

Highlights:

  • Panoramic views of local foothills

  • Expansive decking overlooking private estate

  • 800' of creek frontage

  • Zoned AG-20 for exclusive landscape

  • Designer finishes selected

  • Adjacent parcel available for purchase

Continue Exploring Related Collections