Beds: 5
Baths: 2 Full | 3 Three Quarter

505 West Maple Avenue, El Segundo, California, 90245, USA

Listed by: Charles Fisher | Estate Properties

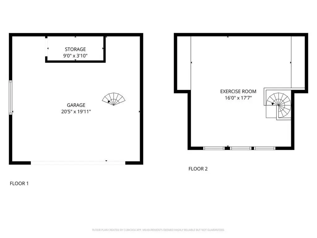
Discover a property that beautifully blends classic charm with modern design, offering 2,708 sq. ft. of versatile living space across a 3 bedroom, 2 bath main residence, a newly built (2024) ADU, a finished recreation room with loft, and an upgraded two-car garage with studio. The main home exudes farmhouse warmth with original hardwood floors, remodeled bathrooms (2020 & 2025), a spacious kitchen with farmhouse sink, subway tile, and granite countertops, plus cozy touches like an electric fireplace. Thoughtful upgrades include central heat and A/C, tankless water heater, copper/PEX plumbing, new roof, solar, and a 200-amp panel (2023). Outdoor living is highlighted by a gated front yard, mature landscaping, automated sprinklers, a new 200 sq. ft. deck, and backyard plumbing for a future fire feature. The newly built (2024) two-story ADU offers a sleek modern contrast, with 2 bedrooms, 2 bathrooms, polished concrete floors, 10’ ceilings, a custom kitchen with new appliances, gas fireplace, upstairs bedrooms with ceiling fans, luxury laminate flooring, and independent solar and utilities. A finished rec room with half bath, kitchenette, and vaulted loft provides additional living or creative space. The polished concrete garage impresses with a full glass high-lift door, beverage refrigerator, custom storage, and a finished studio with wired speakers and A/C. Perfect for multi-generational living, private retreat, or rental income, this unique property blends rustic comfort with modern convenience, all within walking distance to Main Street dining, shops, and the beach, with easy freeway access.
Show More Show Less

Discover a property that beautifully blends classic charm with modern design, offering 2,708 sq. ft. of versatile living space across a 3 bedroom, 2 bath main residence, a newly built (2024) ADU, a finished recreation room with loft, and an upgraded two-car garage with studio. The main home exudes farmhouse warmth with original hardwood floors, remodeled bathrooms (2020 & 2025), a spacious kitchen with farmhouse sink, subway tile, and granite countertops, plus cozy touches like an electric fireplace. Thoughtful upgrades include central heat and A/C, tankless water heater, copper/PEX plumbing, new roof, solar, and a 200-amp panel (2023). Outdoor living is highlighted by a gated front yard, mature landscaping, automated sprinklers, a new 200 sq. ft. deck, and backyard plumbing for a future fire feature. The newly built (2024) two-story ADU offers a sleek modern contrast, with 2 bedrooms, 2 bathrooms, polished concrete floors, 10’ ceilings, a custom kitchen with new appliances, gas fireplace, upstairs bedrooms with ceiling fans, luxury laminate flooring, and independent solar and utilities. A finished rec room with half bath, kitchenette, and vaulted loft provides additional living or creative space. The polished concrete garage impresses with a full glass high-lift door, beverage refrigerator, custom storage, and a finished studio with wired speakers and A/C. Perfect for multi-generational living, private retreat, or rental income, this unique property blends rustic comfort with modern convenience, all within walking distance to Main Street dining, shops, and the beach, with easy freeway access.

Highlights:

  • Hardwood floors

  • Granite countertops

  • Electric fireplace

  • Central heat and A/C

  • Solar panels

  • Custom kitchen

  • Polished concrete floors

  • Vaulted loft

  • Glass high-lift garage door

  • Outdoor deck

  • Show More Show Less
Reference ID: SB25225680 Web ID: umjp

Listed by Charles Fisher | Estate Properties

Contact by phone:  3103789494
Contact email form:

Highlights:

  • Hardwood floors

  • Granite countertops

  • Electric fireplace

  • Central heat and A/C

  • Solar panels

  • Custom kitchen

  • Polished concrete floors

  • Vaulted loft

  • Glass high-lift garage door

  • Outdoor deck