Beds: 6
Baths: 5 Full

2614 West Logan Boulevard, Chicago, Illinois, 60647, USA

Listed by: Amy Morro | Baird & Warner

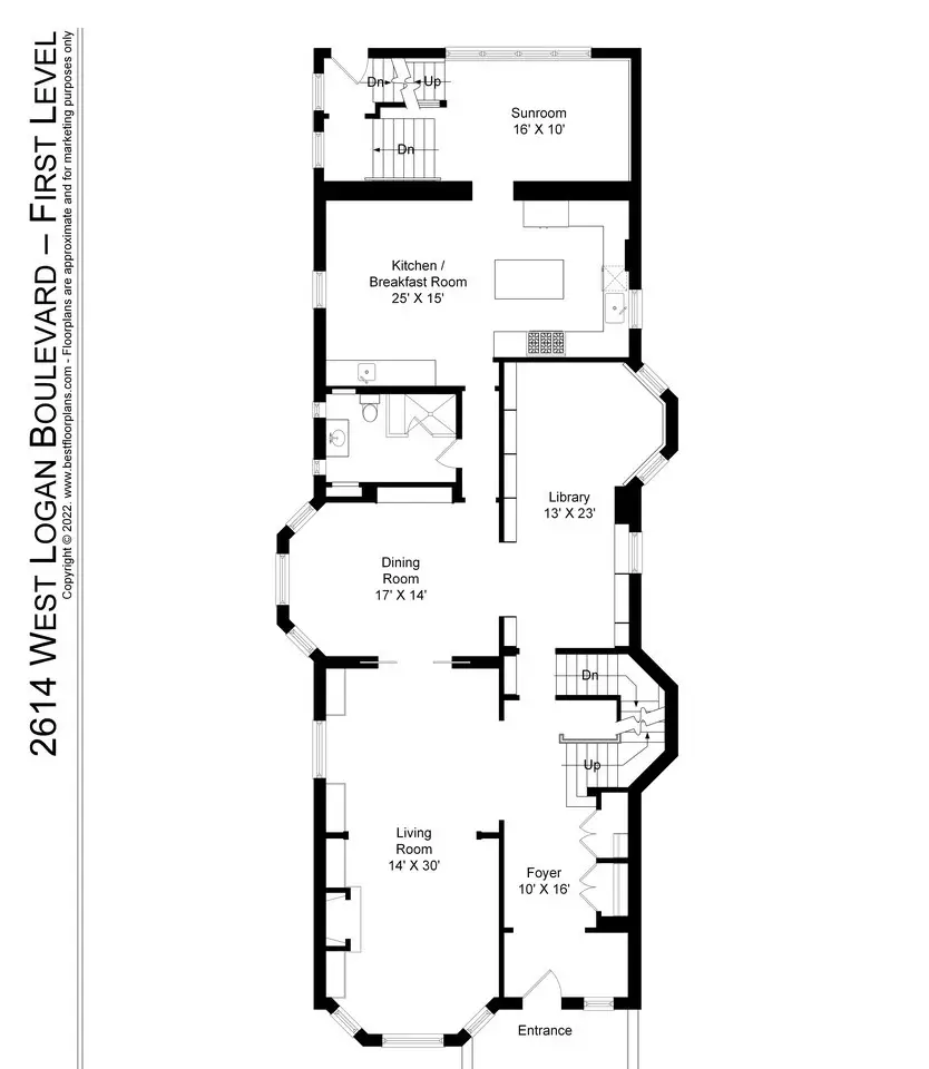
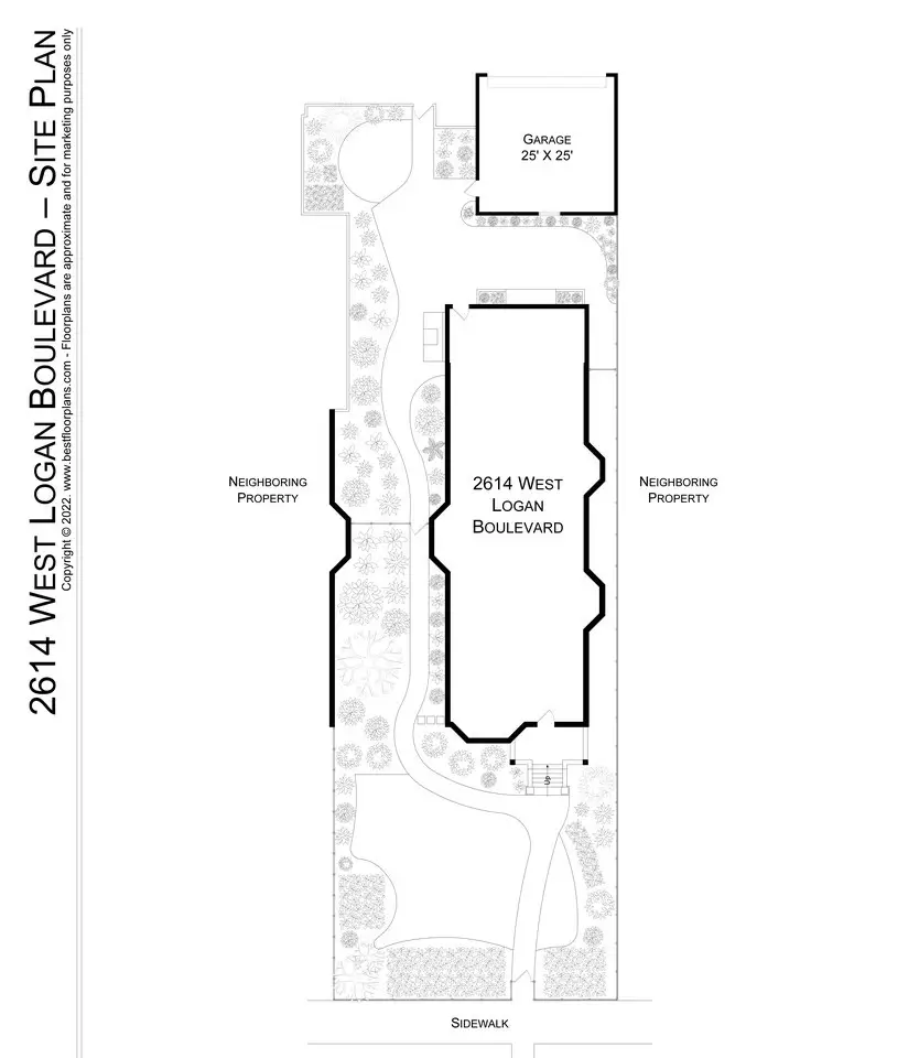
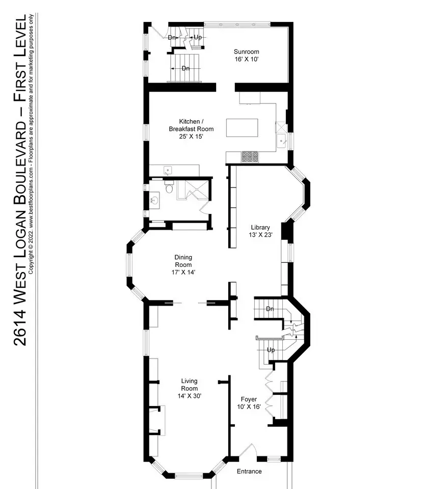
Magnificent Graystone on a double lot in the Logan Square Historic District. Working with Nina and John Hancock of Hancock and Hancock, the house underwent a complete renovation in 2008, taking the interior down to the studs, preserving the architectural detail while updating the floorplan and mechanics of the home. Enter to a grand 2 story Foyer, dual coat closets and a chandelier that can be lowered with the push of a button for cleaning. An original cut glass window sparkles in the bay window of the Living Room with a fireplace, lovely built-in cabinets and intact (covered) pocket doors leading to the formal Dining room. The elegant Library, adjacent to the dinging room, is the perfect place for pre dinner cocktails with cozy seating and a wet bar. Down the hall, past a full bath, is the cooks Kitchen. Cambium, Shaker style, cabinets, a 6 burner AGA stove (dual fuel) with 4 ovens, a Dacor warming drawer, Miele dishwasher and a Sub- Zero refrigerator are highlights of the Kitchen. A movable center island, allowing for maximum utility and a lovely dining area/breakfast room with extensive built in cabinets complete the space. The Sunroom overlooks the lush backyard with a blue stone walkway and patio where you will find a DCS built-in grill, comfortable seating and an outdoor dining area. The two-car garage was originally the stable for the property and the interior now includes a ""tuxedo junction"". The sought after 4 Bedrooms are found on the second floor, 3 with en-suite baths. The Primary Bedroom has 3 walk-in closets and its bath has marble floors, counters and shower with a separate soaking tub. A Bedroom suite with a sitting room and full bath is downstairs. Additionally, there is an impressive Office, with built-ins and a seating area, another Bedroom, wine storage, a work-out area with a refrigerator and ""Costco"" closets; a Workroom/tool room with shelving, a Laundry with a large sink/Dog Washing station and sitting area on the lower level. Completing this functional space is a Cedar Closet, a Utility closet and abundant storage. This home has been meticulously maintained adding a New Roof in 2021, the original cut and stained glass windows have all been restored including new windows in 2008; dual zoned heating and cooling, 2 water heaters, and mature landscaping are checked regularly. Merkle woodworking is found throughout the home and the floors are quarter sawn. All the closets have professionally built California closets. 2614 Logan Boulevard has a fully monitored alarm system for doors, windows and locks; the Savant Security system includes lighting, motion detectors and security cameras. There is a data room, Cat 5 wiring and 4 zones of x-infinity connectivity. At the time 2614 Logan Boulevard was built, Logan Sq was the perimeter of the city, where the ""EL"" ended. Today, Logan Square is Hot, Hot, Hot with new restaurants opening monthly. According to a resident ""Logan Square has an amazing Sunday farmers market filled with the eclectic crowd that gives Logan Sq so much life. People love the neighborhood, its sense of community and there is lot energy towards making it thrive and also be inclusive"". The Chicago Blue line is a few blocks west of 2614 Logan and there is easy access on and off 90/94. Logan Boulevard is equidistant from O'Hare and Midway.
Show More Show Less

Magnificent Graystone on a double lot in the Logan Square Historic District. Working with Nina and John Hancock of Hancock and Hancock, the house underwent a complete renovation in 2008, taking the interior down to the studs, preserving the architectural detail while updating the floorplan and mechanics of the home. Enter to a grand 2 story Foyer, dual coat closets and a chandelier that can be lowered with the push of a button for cleaning. An original cut glass window sparkles in the bay window of the Living Room with a fireplace, lovely built-in cabinets and intact (covered) pocket doors leading to the formal Dining room. The elegant Library, adjacent to the dinging room, is the perfect place for pre dinner cocktails with cozy seating and a wet bar. Down the hall, past a full bath, is the cooks Kitchen. Cambium, Shaker style, cabinets, a 6 burner AGA stove (dual fuel) with 4 ovens, a Dacor warming drawer, Miele dishwasher and a Sub- Zero refrigerator are highlights of the Kitchen. A movable center island, allowing for maximum utility and a lovely dining area/breakfast room with extensive built in cabinets complete the space. The Sunroom overlooks the lush backyard with a blue stone walkway and patio where you will find a DCS built-in grill, comfortable seating and an outdoor dining area. The two-car garage was originally the stable for the property and the interior now includes a ""tuxedo junction"". The sought after 4 Bedrooms are found on the second floor, 3 with en-suite baths. The Primary Bedroom has 3 walk-in closets and its bath has marble floors, counters and shower with a separate soaking tub. A Bedroom suite with a sitting room and full bath is downstairs. Additionally, there is an impressive Office, with built-ins and a seating area, another Bedroom, wine storage, a work-out area with a refrigerator and ""Costco"" closets; a Workroom/tool room with shelving, a Laundry with a large sink/Dog Washing station and sitting area on the lower level. Completing this functional space is a Cedar Closet, a Utility closet and abundant storage. This home has been meticulously maintained adding a New Roof in 2021, the original cut and stained glass windows have all been restored including new windows in 2008; dual zoned heating and cooling, 2 water heaters, and mature landscaping are checked regularly. Merkle woodworking is found throughout the home and the floors are quarter sawn. All the closets have professionally built California closets. 2614 Logan Boulevard has a fully monitored alarm system for doors, windows and locks; the Savant Security system includes lighting, motion detectors and security cameras. There is a data room, Cat 5 wiring and 4 zones of x-infinity connectivity. At the time 2614 Logan Boulevard was built, Logan Sq was the perimeter of the city, where the ""EL"" ended. Today, Logan Square is Hot, Hot, Hot with new restaurants opening monthly. According to a resident ""Logan Square has an amazing Sunday farmers market filled with the eclectic crowd that gives Logan Sq so much life. People love the neighborhood, its sense of community and there is lot energy towards making it thrive and also be inclusive"". The Chicago Blue line is a few blocks west of 2614 Logan and there is easy access on and off 90/94. Logan Boulevard is equidistant from O'Hare and Midway.

Highlights:

  • Grand 2 story Foyer

  • Original cut glass windows

  • Elegant Library with wet bar

  • Custom Cambium cabinets

  • 6 burner AGA stove

  • Blue stone walkway and patio

  • DCS built-in grill

  • Impressive Office with built-ins

  • Professionally built California closets

  • Savant Security system with cameras

  • Show More Show Less
Walk-Thru
Reference ID: 11717916 Web ID: cypg

Listed by Amy Morro | Baird & Warner

Contact by phone:  773-318-9550
Contact email form:

Highlights:

  • Grand 2 story Foyer

  • Original cut glass windows

  • Elegant Library with wet bar

  • Custom Cambium cabinets

  • 6 burner AGA stove

  • Blue stone walkway and patio

  • DCS built-in grill

  • Impressive Office with built-ins

  • Professionally built California closets

  • Savant Security system with cameras

Continue Exploring Related Collections