Lovely Unit in the Carlyle Building
1040 North Lake Shore Drive #8B, Chicago, Illinois, 60611, USA
Listed by: Joelle Hayes | @properties Christie’s International Real Estate
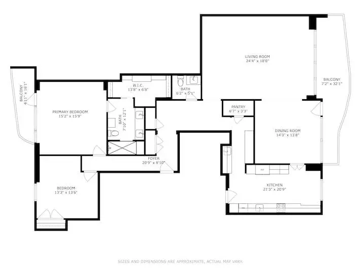
Situated in a prime location on Lake Shore Drive close to shopping, dining, and in between tree lined streets for those quiet residential walks, you'll find the Carlyle building. From its dramatic front steps to the private paver driveway in the back, this building features easy and luxe living at its best with parking included. You'll step off the elevator into an intimate marble foyer and lovely unit with gracious entryway, detailed up-lit tray ceilings and two coat closets. This unique B layout is a perfect size with a floor plan that flows, large living room and formal dining room with picture perfect views of the lake, Oak Street Beach, Lakefront Park, and cityscape. Enjoy the fresh air and views from both East and West facing terraces. This unit was completely renovated in 2016 including a reconfigured layout, new kitchen and baths, floors, updated plumbing and electricity and all new windows and patio doors. Chic and classic white kitchen features a Thermador double oven, cooktop and warming drawer, U-line beverage fridge, butlers pantry with wet bar, washer/dryer and walk-in pantry for additional storage. Large primary bedroom suite has a private terrace, bathroom with double bowl vanity, steam shower, linen cabinets, and huge custom walk-in closet. Second bedroom has a custom closet and sunny and city views to the West. Throughout the unit you'll find quality finishes including upgraded moldings, baseboards, paneled doors, high-end hardware, solar shades and drapes, zoned heating and cooling. Move-in ready unit that checks all the boxes of view, outdoor space, parking and wonderful Gold Coast location! 24 hr staff, indoor rooftop pool, wrap around roof deck with grills and seating, gym and hotel ballroom like party room with a catering kitchen for those over-the-top parties overlooking the lake.
Highlights:
- Marble foyer
- Tray ceilings
- Oak Street Beach views
Listed by Joelle Hayes | @properties Christie’s International Real Estate
Highlights:
- Marble foyer
- Tray ceilings
- Oak Street Beach views
- Terrace spaces
- Thermador appliances
- Steam shower
- Custom walk-in closet
- High-end finishes
- Indoor rooftop pool
- Catering kitchen
 
                     
                     
                     
                     
                     
                     
                     
                     
                     
             
                     
                     
        
    
           
        
    
           
        
    
          