Beds: 3
Baths: 3 Full

950 North Michigan Avenue #2502, Chicago, Illinois, 60611, USA

Listed by: India Whiteside | @properties Christie’s International Real Estate

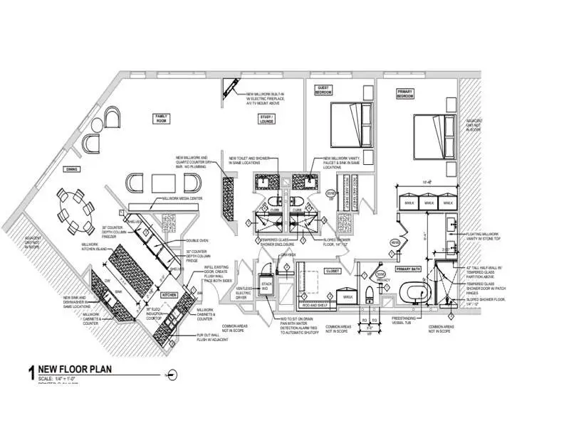
Full gut rehab underway in this perfectly located corner unit with fantastic views of Oak Street Beach and Lake Michigan! Enter into the elegant foyer which branches off to private bedroom areas, as well as to the gracious entertaining spaces. The ample living room can be expanded by opening the French doors to the study, and flows seamlessly into the dining room. Stunning new kitchen with full size SubZero refreigerator, full size SubZero freezer, Wolf induction surface level cooktop, Wolf double oven, Miele dishwasher. There is still time to make some selections. The primary suite has a luxurious bathroom with Toto multi function bidet, double vanity sink, separate steam/rain shower, soaking tub, and walk-in closets. Second bedroom is also en suite, and the third en suite bedroom can also be used as a study that opens to the living room via French doors. All bathroom floors are heated. Beautifully designed with the private areas split from the entertaining areas, with great flow. Unit is wired for audio, cable, and internet. The full amenity building includes a health club with a striking glass enclosed pool and whirlpool with adjoining balcony; a state of the art gym; a large sundeck with grills; 24 hour door-staff and on-site building management and a live-in engineer. A dog or cat is welcome up to 30 lbs. Valet parking on site, for multiple spots if desired. Great city living in the heart of it all!
Show More Show Less

Full gut rehab underway in this perfectly located corner unit with fantastic views of Oak Street Beach and Lake Michigan! Enter into the elegant foyer which branches off to private bedroom areas, as well as to the gracious entertaining spaces. The ample living room can be expanded by opening the French doors to the study, and flows seamlessly into the dining room. Stunning new kitchen with full size SubZero refreigerator, full size SubZero freezer, Wolf induction surface level cooktop, Wolf double oven, Miele dishwasher. There is still time to make some selections. The primary suite has a luxurious bathroom with Toto multi function bidet, double vanity sink, separate steam/rain shower, soaking tub, and walk-in closets. Second bedroom is also en suite, and the third en suite bedroom can also be used as a study that opens to the living room via French doors. All bathroom floors are heated. Beautifully designed with the private areas split from the entertaining areas, with great flow. Unit is wired for audio, cable, and internet. The full amenity building includes a health club with a striking glass enclosed pool and whirlpool with adjoining balcony; a state of the art gym; a large sundeck with grills; 24 hour door-staff and on-site building management and a live-in engineer. A dog or cat is welcome up to 30 lbs. Valet parking on site, for multiple spots if desired. Great city living in the heart of it all!

Highlights:

  • Custom cabinetry

  • SubZero & Wolf kitchen appliances

  • Heated bathroom floors

  • Glass enclosed pool

  • State-of-the-art gym

  • 24-hour door staff

  • Valet parking

  • Show More Show Less
Reference ID: 12445443 Web ID: jlhd

Listed by India Whiteside | @properties Christie’s International Real Estate

Contact email form:

Highlights:

  • Custom cabinetry

  • SubZero & Wolf kitchen appliances

  • Heated bathroom floors

  • Glass enclosed pool

  • State-of-the-art gym

  • 24-hour door staff

  • Valet parking