Rare Freehold Property with Huge Potential
11 Palliser Lane, Auckland, Auckland, 0630, New Zealand
Listed by: Rocky Liu | Barfoot & Thompson
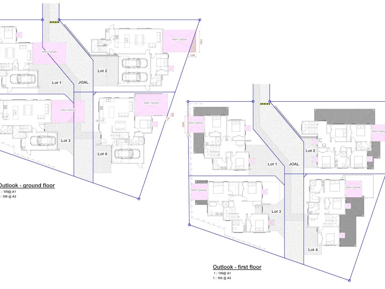
Nestled in a quiet and friendly cul-de-sac, enjoy the prestige of 1096m² (approx.) of freehold land—yours to bank for the future, renovate, or develop. RC is granted for 4 stand-alone houses, and EPA is under application! Onsite services offer flexibility and peace of mind whether you’re planning to invest or create your forever home. Attention to families, builders, developers and investors. Either now or later, take advantage of the Mixed Housing Suburban Zoning to develop or re-imagine this flat land. According to the Council Consents, there are plans for:• 4 Freehold Stand-alone houses• Lot 1: 4 bedroom + 1 study, 3 bathroom, single garage, floor area 154.30m2• Lot 2: 5 bedroom, 3.5 bathroom, double garage, floor area 202.10m2• Lot 3: 4 bedroom + 1 study, 3 bathroom, single garage, floor area 168.30m2• Lot 4: 4 bedroom + 1 study, 3 bathroom, single garage, floor area 157.40m2• Rangitoto College School Zone• Walk to local shops, parks & supermarket. Just a few minutes driving to Browns Bay Beach, Albany shopping center, local cafés, supermarkets, and enjoy effortless access to the motorway for quick city trips. Everything you need is right at your fingertips. This is your chance to immerse yourself in the vibrant East Coast Bays lifestyle. Zoned for Sherwood School, Pinehill School, Murrays Bay Intermediate, Northcross Intermediate, and Rangitoto College, your kids deserve the best. Don’t miss this rare chance to secure a home in an unbeatable location. Unlock the potential of a generous freehold land parcel – ideal for land banking, future development, or renovation and enjoying the space and privacy only such a section can offer. Contact us today to arrange your viewing. Auction: 8-12 The Promenade, Takapuna on Thursday 18 September 2025 at 10:00AM (unless sold prior)
Highlights:
- Custom cabinetry
- Architectural plans for 4 stand-alone houses
- Mixed Housing Suburban Zoning
Listed by Rocky Liu | Barfoot & Thompson
Highlights:
- Custom cabinetry
- Architectural plans for 4 stand-alone houses
- Mixed Housing Suburban Zoning
- Close to local amenities
- Rangitoto College School Zone
 
                     
                     
                     
                     
                     
                     
                     
                     
                     
             
                     
                     
        
    
            
     
        
    
            
     
        
    
            
     
        
    
            
     
        
    
            
     
        
    
           
        
    
          