New Luxury Residence Is in the Making
38 Elliot Street, Riverhead, Auckland, 0820, New Zealand
Listed by: Eddie Zhao | Barfoot & Thompson
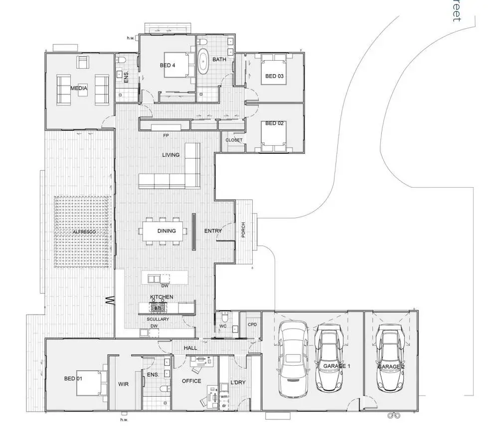
A new luxury residence is in the making — with completion in approx.12 months by reputable Ceta Homes. Secure now and add your personal touch. Rarely does a home of this calibre present itself — a residence where luxury and lifestyle converge to create an extraordinary sanctuary. Set upon a private 1,143m² retreat, this architectural masterpiece exudes refinement, space, and elegance at every turn.Conceived with a vision of effortless living and sophisticated entertaining, the design showcases clean lines, grand proportions, and an abundance of natural light. Every element has been meticulously considered, balancing contemporary design with enduring comfort.Four Bedrooms + Private Office + Media Lounge – crafted for versatility, from intimate family living to grand-scale hostingThree Exquisite Bathrooms – sleek, indulgent, and detailed with premium finishes befitting a home of this standingCulinary Designer Kitchen & Expansive Open-Plan Living – the heart of the residence, where daily rituals transform into elegant occasionsTriple-Bay Garage – an impressive space for prized vehicles, a home gym, or bespoke workshopGenerous Storage – from custom cabinetry to a walk-in store, ensuring both order and easeRefined Enhancements – central heating, statement fireplace, bespoke bar, and a louvred alfresco pavilion for year-round enjoymentDelivering 337m² of elevated living, this residence is not just a home — it is a statement of modern luxury, designed to enrich both lifestyle and legacy. A property of such rarity is destined for the discerning few.
Highlights:
- Stone Surfaces
- Custom Cabinetry
- Statement Fireplace
Listed by Eddie Zhao | Barfoot & Thompson
Highlights:
- Stone Surfaces
- Custom Cabinetry
- Statement Fireplace
- Louvred Alfresco Pavilion
- Culinary Designer Kitchen
- Expansive Open-Plan Living
 
                     
                     
                     
                     
                     
                     
                     
                     
             
                     
                     
        
    
            
     
        
    
            
     
        
    
            
     
        
    
            
     
        
    
            
     
        
    
            
     
        
    
            
     
        
    
            
     
        
    
           
        
    
           
        
    
          