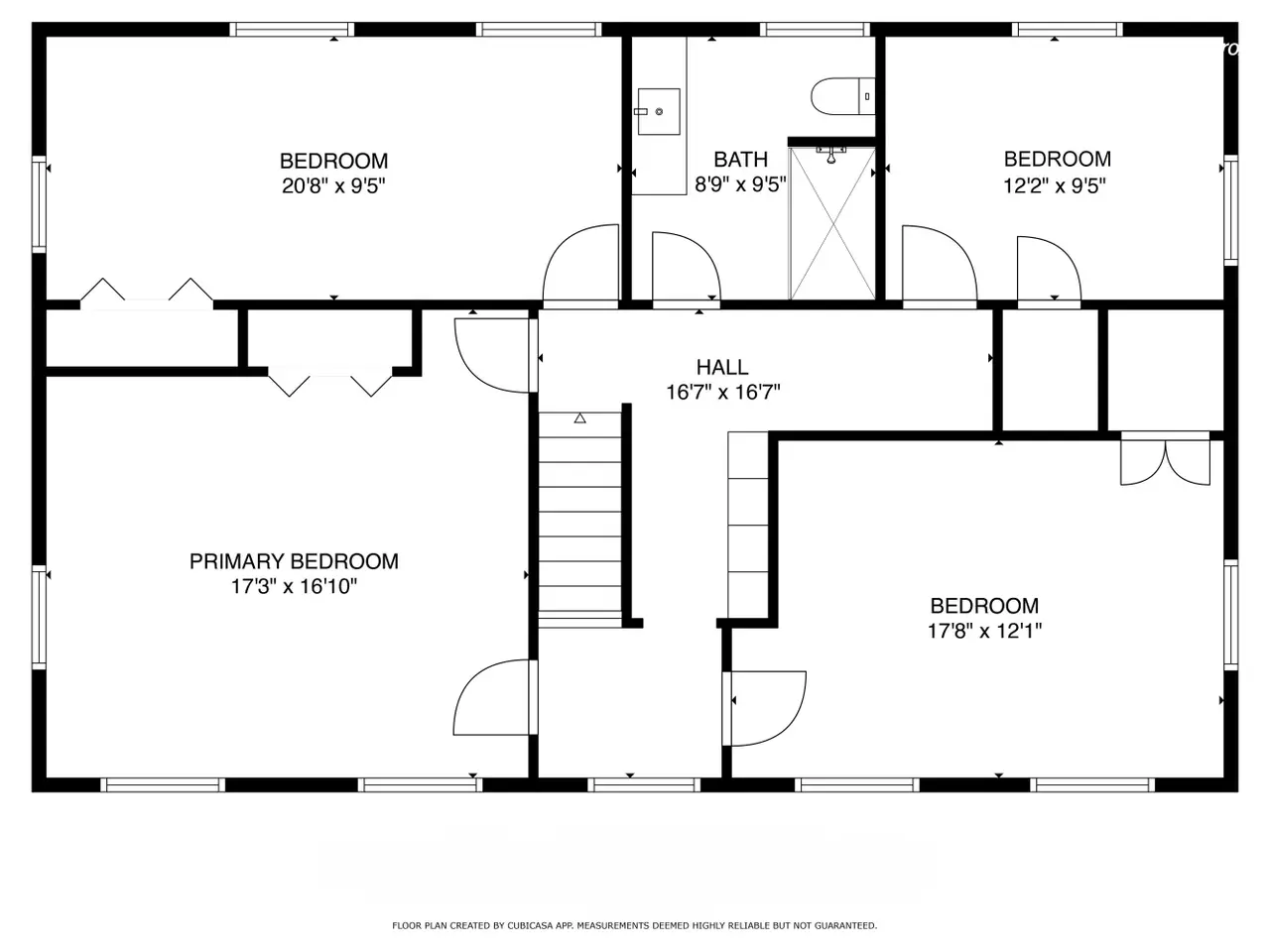
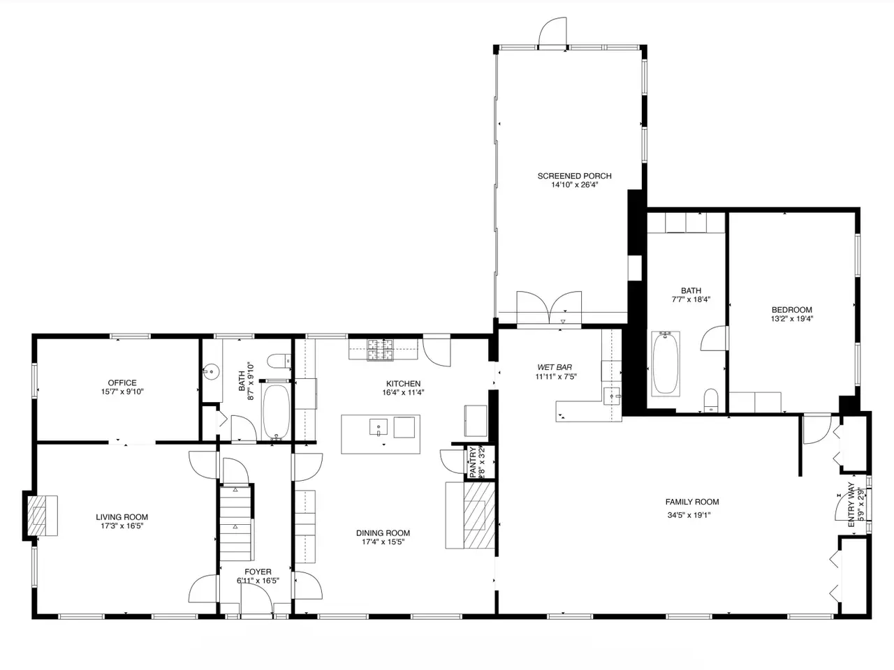
Beds: 5
Baths: 3 Full

4944 Scio Church Road, Ann Arbor, Michigan, 48103, USA

Listed by: Nancy Bishop | Reinhart Realtors

On 15.62 acres of prairie & farmland, this 1856 Cobblestone Farmhouse in Scio Twp has almost 4,000 sq. ft. of up-to-the-minute renovations. Its sophisticated design respects the classic nature of the Four-Square floor plan. It features formal living & dining rooms w/ fireplaces, a home office, updated bath & a chef's kitchen w/ custom cabinets, butcher block counters & stainless. A thoughtful addition that almost doubles the first-floor living space. It has a family room w/ impressive wet bar area, an additional bedroom or den, full bath & laundry. Upstairs is the large Primary bedroom, 3 additional bedrooms, & a renovated hallway bath. The oversized 3-season room w/ fireplace opens to an expansive outdoor living area with multiple patios & firepit area, all overlooking the expansive acreage, w/ regular visits from deer, turkeys & Sandhill cranes. Important updates include windows (2025), French doors to 3-season room (2023), garage doors (2023), well (2018) & 8-zone boiler (2018).
Show More Show Less

On 15.62 acres of prairie & farmland, this 1856 Cobblestone Farmhouse in Scio Twp has almost 4,000 sq. ft. of up-to-the-minute renovations. Its sophisticated design respects the classic nature of the Four-Square floor plan. It features formal living & dining rooms w/ fireplaces, a home office, updated bath & a chef's kitchen w/ custom cabinets, butcher block counters & stainless. A thoughtful addition that almost doubles the first-floor living space. It has a family room w/ impressive wet bar area, an additional bedroom or den, full bath & laundry. Upstairs is the large Primary bedroom, 3 additional bedrooms, & a renovated hallway bath. The oversized 3-season room w/ fireplace opens to an expansive outdoor living area with multiple patios & firepit area, all overlooking the expansive acreage, w/ regular visits from deer, turkeys & Sandhill cranes. Important updates include windows (2025), French doors to 3-season room (2023), garage doors (2023), well (2018) & 8-zone boiler (2018).

Highlights:

  • Fireplaces

  • Chef's kitchen with custom cabinets

  • Butcher block counters

  • Stainless steel appliances

  • Impressive wet bar area

  • Expansive outdoor living area

  • Multiple patios

  • Three-season room with fireplace

  • Renovated bathrooms

  • Oversized acreage

  • Show More Show Less
Reference ID: 25035742 Web ID: hfik

Listed by Nancy Bishop | Reinhart Realtors

Contact by phone:  734-761-3040
Contact email form:

Highlights:

  • Fireplaces

  • Chef's kitchen with custom cabinets

  • Butcher block counters

  • Stainless steel appliances

  • Impressive wet bar area

  • Expansive outdoor living area

  • Multiple patios

  • Three-season room with fireplace

  • Renovated bathrooms

  • Oversized acreage

Continue Exploring Related Collections