Beds:4
Baths:3 Full

5555 Mulberry Way, Yorba Linda, California, 92887, USA

Listed by: Richelle Redivo | First Team Real Estate

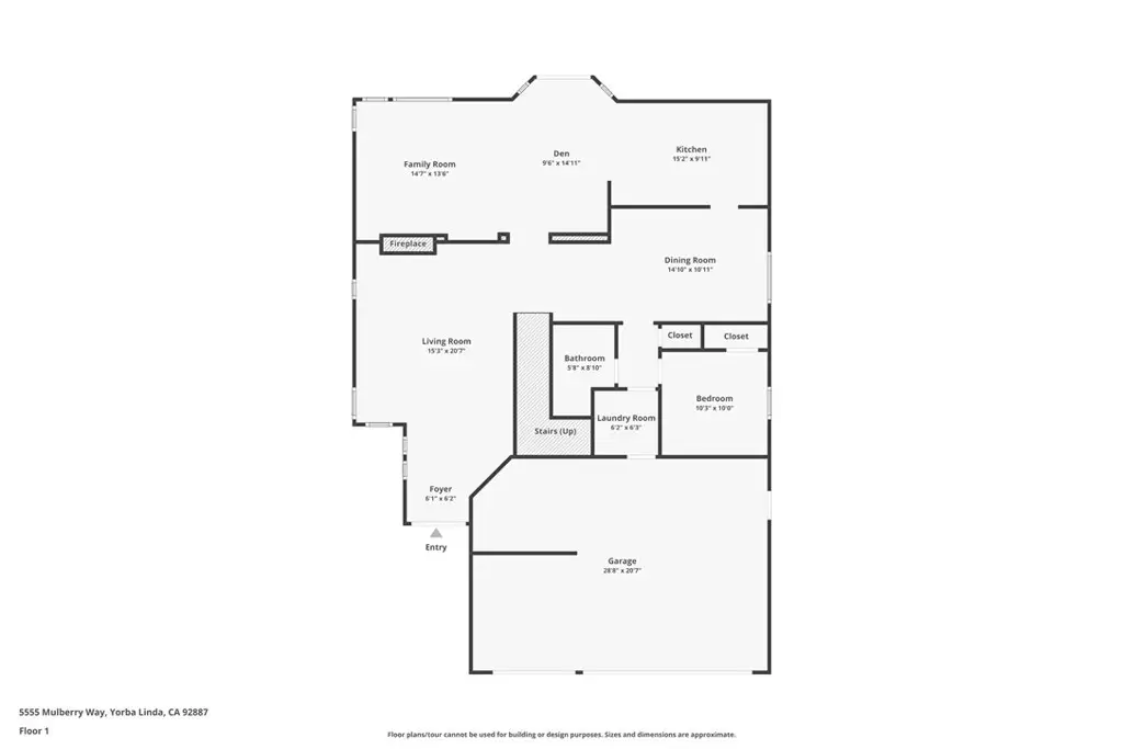
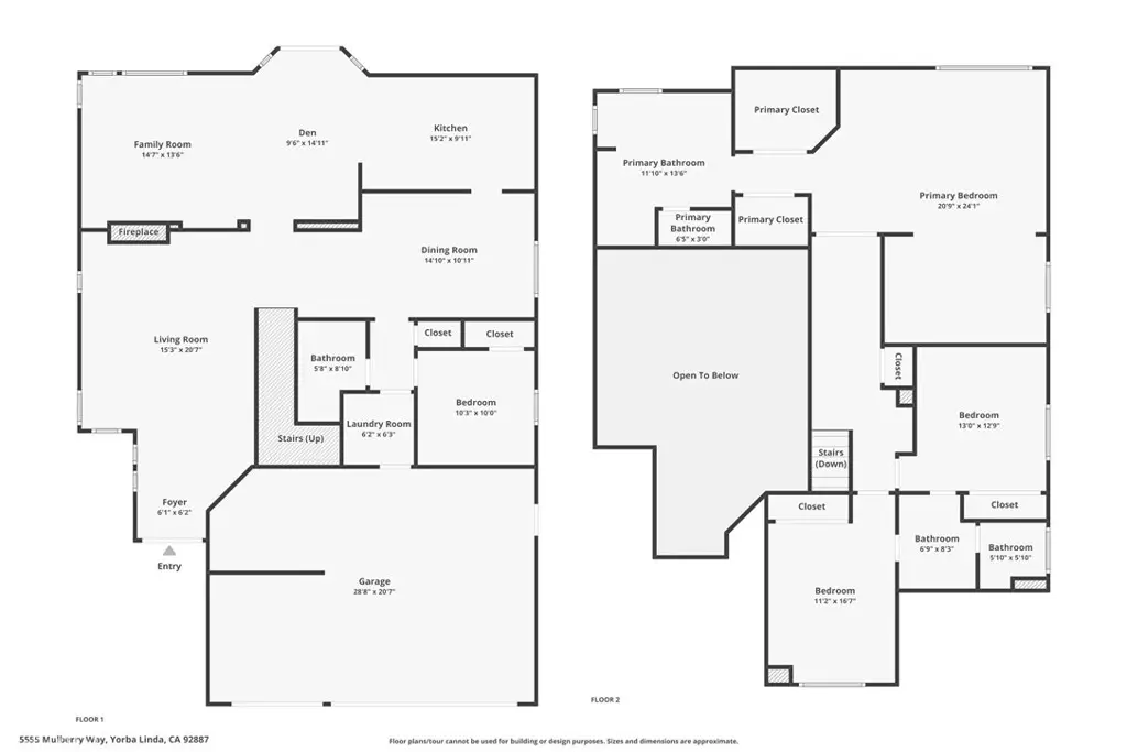
Elegant Family Home with Resort-Style Backyard on a Spacious Lot Nestled on a generous ~9,100 sq. ft. lot in a serene, established neighborhood, this elegant residence offers 2800+ sq. ft. of living space across two stories. With 4 bedrooms and 3 bathrooms, it combines space, comfort, and style--perfect for relaxed family living and elegant entertaining. At the heart of the home, a chef-caliber kitchen featuring a WOLF cooktop and double oven, opens seamlessly to the family room and main living areas, creating an ideal flow for gatherings and indoor-outdoor living. The primary suite provides a luxurious retreat with double-door entry, dual walk-in closets, a sitting area, and a spa-inspired en-suite bathroom. The additional bedrooms are generously sized, including one conveniently located on the main level next to a 3/4 bath--a perfect setup for guests or multi-generational living. Step outside to your private backyard oasis: a sparkling saltwater pool and spa with rock waterfall and slide, a golf putting green, and a built in BBQ with refrigerator and Bar offering true resort-style living. Additional highlights include a 3-car garage, RV parking, and a quiet cul-de-sac location within a community celebrated for its family-friendly atmosphere and top-rated schools.
Show More Show Less

Elegant Family Home with Resort-Style Backyard on a Spacious Lot Nestled on a generous ~9,100 sq. ft. lot in a serene, established neighborhood, this elegant residence offers 2800+ sq. ft. of living space across two stories. With 4 bedrooms and 3 bathrooms, it combines space, comfort, and style--perfect for relaxed family living and elegant entertaining. At the heart of the home, a chef-caliber kitchen featuring a WOLF cooktop and double oven, opens seamlessly to the family room and main living areas, creating an ideal flow for gatherings and indoor-outdoor living. The primary suite provides a luxurious retreat with double-door entry, dual walk-in closets, a sitting area, and a spa-inspired en-suite bathroom. The additional bedrooms are generously sized, including one conveniently located on the main level next to a 3/4 bath--a perfect setup for guests or multi-generational living. Step outside to your private backyard oasis: a sparkling saltwater pool and spa with rock waterfall and slide, a golf putting green, and a built in BBQ with refrigerator and Bar offering true resort-style living. Additional highlights include a 3-car garage, RV parking, and a quiet cul-de-sac location within a community celebrated for its family-friendly atmosphere and top-rated schools.

Highlights:

  • WOLF cooktop and double oven

  • Saltwater pool with rock waterfall and slide

  • Spa-inspired en-suite bathroom

  • Golf putting green

  • Built-in BBQ with refrigerator

  • Cul-de-sac location

  • Dual walk-in closets

  • Family-friendly atmosphere

  • 3-car garage

  • Main level guest bedroom

  • Show More Show Less
Reference ID:OC25252016 Web ID:lomw

Listed by Richelle Redivo | First Team Real Estate

Contact by phone:  949-838-5449
Contact email form:

Highlights:

  • WOLF cooktop and double oven

  • Saltwater pool with rock waterfall and slide

  • Spa-inspired en-suite bathroom

  • Golf putting green

  • Built-in BBQ with refrigerator

  • Cul-de-sac location

  • Dual walk-in closets

  • Family-friendly atmosphere

  • 3-car garage

  • Main level guest bedroom