Beds:3
Baths:1 Full | 1 Three Quarter

19219 Beckworth Avenue, Torrance, California, 90503, USA

Listed by: Sharon Cole | Estate Properties

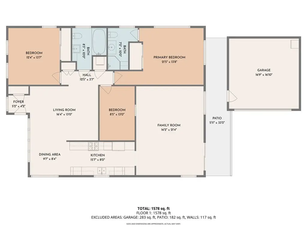
Pride of Ownership – Turnkey Property – Move in Ready! This charming, remodeled West Torrance home sits on a large corner lot of 6,362 sq. ft. and is truly a rare find with RV parking space and 2-car garage. It all starts with the curb appeal – truly a must see! This unique 3-bedroom, 2-bathroom home, consists of 1524 sq. ft. of living space including the family room of 300 sq. ft. (grandfathered in). Additional features and upgraded highlights: large open kitchen with quartz countertops and high-end stainless-steel appliances – including wine cooler, dual-pane windows throughout, tank-less water heater, PEXs re-pipe, forced heating & air conditioning, new polyurethane sewer line, crown molding and new baseboards, plantation shutters, recessed lighting, new natural woodgrain embossed vinyl flooring, Moen smart leak-detection system (app-controlled). newer roof, rain gutters, professionally landscaped yard, Smart front-yard sprinklers (Rachio, app-controlled) new vinyl fence with accent post-lights enclosing front yard, 2-car garage with built in custom storage shelves and woodwork bench. Ring security system: cameras around the entire property, motion detector in living room and den, and window/door sensors on all doors and windows (including garage). And to top it all off – walking distance to Park, Towers Elementary, Bert Lynn Middle, and West High Schools. Located just minutes from Hospitals, Restaurants, Shopping Center, Public Transportation and Redondo Beach Pier.
Show More Show Less

Pride of Ownership – Turnkey Property – Move in Ready! This charming, remodeled West Torrance home sits on a large corner lot of 6,362 sq. ft. and is truly a rare find with RV parking space and 2-car garage. It all starts with the curb appeal – truly a must see! This unique 3-bedroom, 2-bathroom home, consists of 1524 sq. ft. of living space including the family room of 300 sq. ft. (grandfathered in). Additional features and upgraded highlights: large open kitchen with quartz countertops and high-end stainless-steel appliances – including wine cooler, dual-pane windows throughout, tank-less water heater, PEXs re-pipe, forced heating & air conditioning, new polyurethane sewer line, crown molding and new baseboards, plantation shutters, recessed lighting, new natural woodgrain embossed vinyl flooring, Moen smart leak-detection system (app-controlled). newer roof, rain gutters, professionally landscaped yard, Smart front-yard sprinklers (Rachio, app-controlled) new vinyl fence with accent post-lights enclosing front yard, 2-car garage with built in custom storage shelves and woodwork bench. Ring security system: cameras around the entire property, motion detector in living room and den, and window/door sensors on all doors and windows (including garage). And to top it all off – walking distance to Park, Towers Elementary, Bert Lynn Middle, and West High Schools. Located just minutes from Hospitals, Restaurants, Shopping Center, Public Transportation and Redondo Beach Pier.

Highlights:

  • Quartz countertops

  • High-end stainless-steel appliances

  • Dual-pane windows throughout

  • Tank-less water heater

  • Crown molding and new baseboards

  • Plantation shutters

  • Smart front-yard sprinklers

  • Professionally landscaped yard

  • Ring security system

  • New vinyl fence with accent post-lights

  • Show More Show Less
Walk-Thru
Reference ID:SB25239146 Web ID:gcdt

Listed by Sharon Cole | Estate Properties

Contact by phone:  3103789494
Contact email form:

Highlights:

  • Quartz countertops

  • High-end stainless-steel appliances

  • Dual-pane windows throughout

  • Tank-less water heater

  • Crown molding and new baseboards

  • Plantation shutters

  • Smart front-yard sprinklers

  • Professionally landscaped yard

  • Ring security system

  • New vinyl fence with accent post-lights