Architectural Riverfront Gem with Artistic Legacy
9712 Cherokee Road, Richmond, Virginia, 23235, USA
Listed by: Margaret Wade | Long & Foster® Real Estate, Inc.
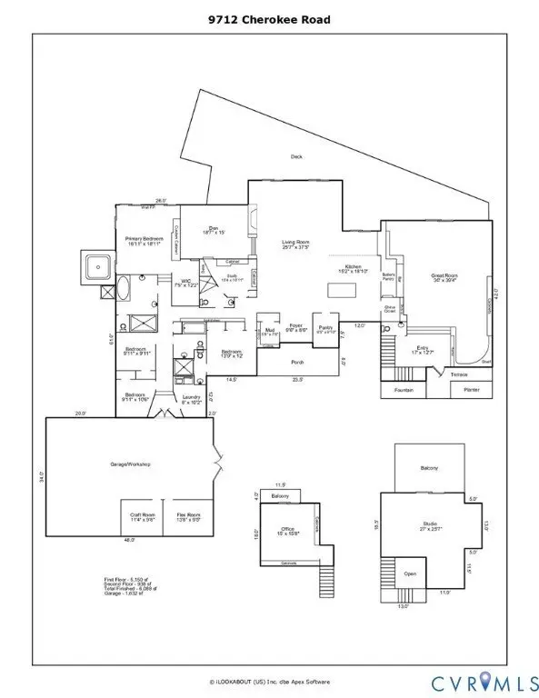
""Extraordinary riverfront contemporary home with rare private access to the James River! This architectural gem blends dramatic design with comfortable living and stunning natural views. This home known as ""The Igloo House"""" was originally created by artist Demetrios Mavroudis and was masterfully reimagined with thoughtful additions and modern luxury while preserving its artful history. Walls of glass, vaulted ceilings with exposed beams, marble floors from the Federal Trade building, architectural details from the University of Richmond and open living spaces capture the light and the river from nearly every room. The chef's kitchen features SubZero and Wolf, quartz counters and an oversized island - perfect for entertaining. The spacious primary suite offers panoramic river views, spa bath with heated floors and exceptional custom cabinetry in the large walk-in closet. There is an additional en-suite bedroom/bath combo, 2 additional bedrooms with a hall bath to share, a 5th possible bedroom with a full bath and a large main floor laundry room. There are 2 additional versatile offices and studio spaces, which provide flexibility for modern living. The oversized former garage houses amazing storage, a huge workshop, an office and an incredible climbing wall gym with """"sprung"""" floor. This space could easily be repurposed to a parking garage again. Outdoor spaces include expansive decks and balconies, a koi pond, stone fire pit and direct access to the flatwater for kayaking and canoeing. Set on over 2 acres with landscaped gardens and spectacular sunsets over Bosher's Dam, this home is a one-of-a-kind Richmond landmark featured in RHome, Modern Home, and HGTV. Every stone, beam and piece of metal tells a story in this home. What began as a park ranger's home, then became an artist's studio and now stands as a deeply loved riverfront retreat for a family. It is now your turn to start your new lifestyle and write your next chapter in this exceptional and special place.""
Highlights:
Marble floors
Vaulted ceilings with exposed beams
Chef's kitchen with SubZero and Wolf appliances
Listed by Margaret Wade | Long & Foster® Real Estate, Inc.
Highlights:
Marble floors
Vaulted ceilings with exposed beams
Chef's kitchen with SubZero and Wolf appliances
Panoramic river views
Spa bath with heated floors
Custom cabinetry
Walls of glass
Stone fire pit
Climbing wall gym
Direct river access