Beds:6
Baths:5 Full | 1 Half

3943 Lakeview Court, Long Grove, Illinois, 60047, USA

Listed by: Valorie Schmidt | @properties Christie’s International Real Estate

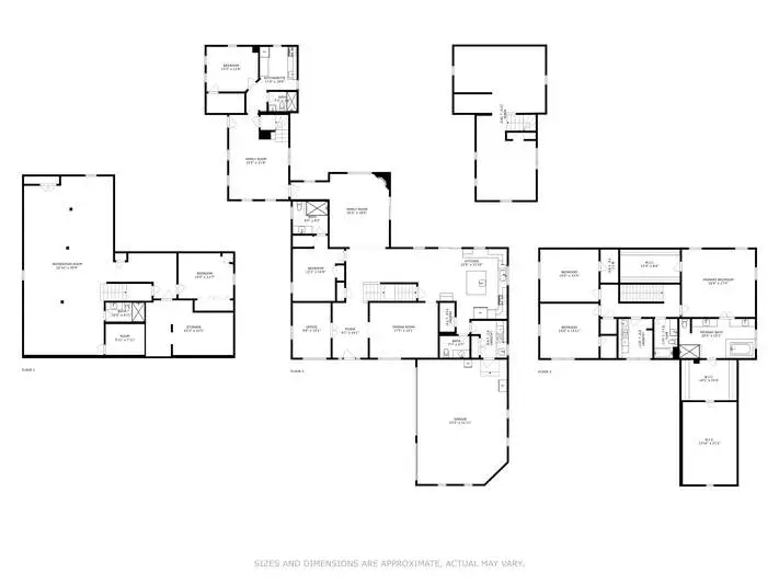
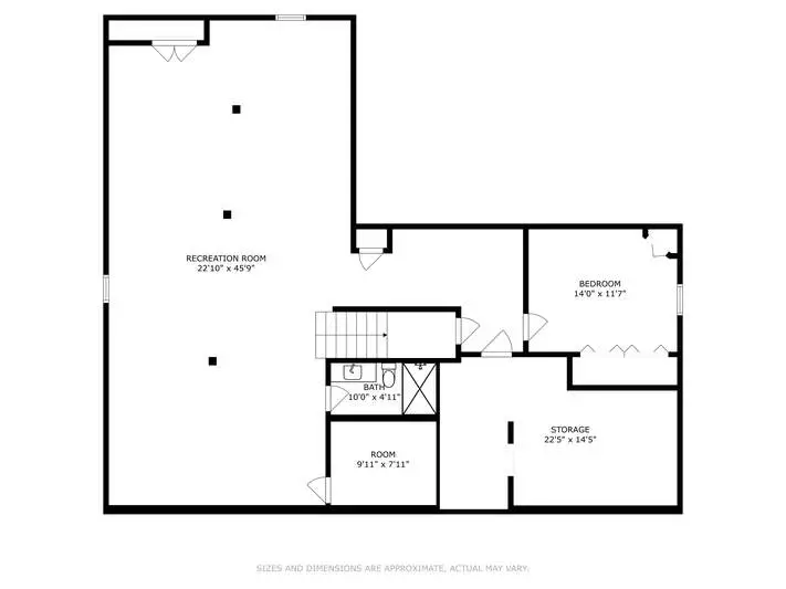
Sprawling Luxury Home on Nearly 1.5 Acres with Guest House in Beaver Creek Estates. Discover exceptional space, luxury, and versatility in this one-of-a-kind estate located in sought-after Beaver Creek Estates. The guest home, built in the late 1800's while the main house construction was completed in 2016. This expansive six bedroom, 5.5 bathroom home offers over 8,000 square feet of finished living space, including a private in-law or guest suite with a separate entrance, perfect for multi-generational living or long-term guests. Originally an updated farmhouse, the main house addition was completed in 2016, blending timeless charm with modern updates. The main level features hardwood flooring, a spacious chef's kitchen with a center island, double ovens, a gas cooktop, two dishwasher drawers (2022 & 2023), a walk-in pantry, and freshly painted cabinetry with new hardware (2025). You'll also find a private home office, formal dining room, inviting family room with fireplace, and a main-level ensuite bedroom ideal for guests. The attached guest house includes its own kitchen, large living room, full bath, bedroom with walk-in closet, and a finished second level with hardwood floors, flexible as additional bedrooms, a home office, playroom, or fitness studio. Enjoy seamless indoor-outdoor living with a wraparound covered porch on the guest house, a large paver patio in the back yard, and a fire-pit, offering tranquil lake views and the perfect spot for morning coffee or dining al fresco. Upstairs, the luxurious primary suite is a true retreat with a spa-inspired bathroom featuring an oversized shower, soaking tub, dual vanities, makeup vanity, and two large walk-in closets plus a versatile bonus room that can serve as a nursery, exercise room, craft room, or sitting area. Two more oversized bedrooms, a hall bath, and a second laundry room complete the upper level, also finished with hardwood floors. The fully finished basement adds over 2,500 square feet of living space, including a large recreation room, additional bedroom, full bath, and abundant storage. Recent Updates & Features include New carpet in basement (2025) Guest house bathroom vanity (2025), Kitchen patio door (2025) New plumbing fixtures in kitchen and baths (2025), Whole house RO system (2018) water heater (2020), Guest house siding (2021) Interior garage door (2025), New ejector and septic pump (2025) 3-car attached garage. With thoughtful design, premium upgrades, and multiple living zones, this luxury home in Beaver Creek Estates offers the ultimate in comfort, privacy, and flexibility. Don't miss the opportunity to own this extraordinary residence. Schedule your private showing today!
Show More Show Less

Sprawling Luxury Home on Nearly 1.5 Acres with Guest House in Beaver Creek Estates. Discover exceptional space, luxury, and versatility in this one-of-a-kind estate located in sought-after Beaver Creek Estates. The guest home, built in the late 1800's while the main house construction was completed in 2016. This expansive six bedroom, 5.5 bathroom home offers over 8,000 square feet of finished living space, including a private in-law or guest suite with a separate entrance, perfect for multi-generational living or long-term guests. Originally an updated farmhouse, the main house addition was completed in 2016, blending timeless charm with modern updates. The main level features hardwood flooring, a spacious chef's kitchen with a center island, double ovens, a gas cooktop, two dishwasher drawers (2022 & 2023), a walk-in pantry, and freshly painted cabinetry with new hardware (2025). You'll also find a private home office, formal dining room, inviting family room with fireplace, and a main-level ensuite bedroom ideal for guests. The attached guest house includes its own kitchen, large living room, full bath, bedroom with walk-in closet, and a finished second level with hardwood floors, flexible as additional bedrooms, a home office, playroom, or fitness studio. Enjoy seamless indoor-outdoor living with a wraparound covered porch on the guest house, a large paver patio in the back yard, and a fire-pit, offering tranquil lake views and the perfect spot for morning coffee or dining al fresco. Upstairs, the luxurious primary suite is a true retreat with a spa-inspired bathroom featuring an oversized shower, soaking tub, dual vanities, makeup vanity, and two large walk-in closets plus a versatile bonus room that can serve as a nursery, exercise room, craft room, or sitting area. Two more oversized bedrooms, a hall bath, and a second laundry room complete the upper level, also finished with hardwood floors. The fully finished basement adds over 2,500 square feet of living space, including a large recreation room, additional bedroom, full bath, and abundant storage. Recent Updates & Features include New carpet in basement (2025) Guest house bathroom vanity (2025), Kitchen patio door (2025) New plumbing fixtures in kitchen and baths (2025), Whole house RO system (2018) water heater (2020), Guest house siding (2021) Interior garage door (2025), New ejector and septic pump (2025) 3-car attached garage. With thoughtful design, premium upgrades, and multiple living zones, this luxury home in Beaver Creek Estates offers the ultimate in comfort, privacy, and flexibility. Don't miss the opportunity to own this extraordinary residence. Schedule your private showing today!

Highlights:

  • Spacious chef's kitchen with top-of-the-line appliances

  • Inviting family room with fireplace

  • Private in-law or guest suite with separate entrance

  • Tranquil lake views from wraparound covered porch

  • Luxurious primary suite with spa-inspired bathroom

  • Versatile bonus room in primary suite

  • Fully finished basement with large recreation room

  • Outdoor fire-pit for al fresco dining

  • Hardwood flooring throughout main and upper levels

  • Thoughtful design with multiple living zones

  • Show More Show Less
Walk-Thru
Reference ID:12448877 Web ID:qkit

Listed by Valorie Schmidt | @properties Christie’s International Real Estate

Contact email form:

Highlights:

  • Spacious chef's kitchen with top-of-the-line appliances

  • Inviting family room with fireplace

  • Private in-law or guest suite with separate entrance

  • Tranquil lake views from wraparound covered porch

  • Luxurious primary suite with spa-inspired bathroom

  • Versatile bonus room in primary suite

  • Fully finished basement with large recreation room

  • Outdoor fire-pit for al fresco dining

  • Hardwood flooring throughout main and upper levels

  • Thoughtful design with multiple living zones