Modern Living with Solar Panels and Large Yard
5518 West 117th Street, Inglewood, California, 90304, USA
Listed by: Bill Ruane | Estate Properties
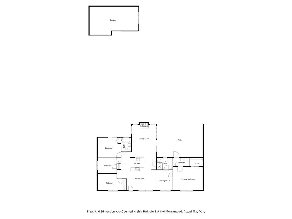
Welcome to 5518 W 117th St, Hawthorne, a beautifully updated 4 bed, 2 bath home sitting on an incredible 10,000+ sqft lot with modern amenities, including AC, heat, and solar panels for energy efficiency. As you enter, you’re greeted by a sleek kitchen featuring a spacious island and a charming dining area. To the left, you'll find two cozy bedrooms, one with sliding doors leading to the backyard, as well as a full bathroom. On the right, there's a comfortable seating area, another full bathroom, and a third bedroom. Conveniently, the laundry room is also nearby. Through the kitchen, the open-concept living room offers abundant natural light with large windows and a slider that leads to the expansive backyard, perfect for entertaining. Situated on a massive lot, the property also includes a two-car detached garage and recessed lighting throughout, making this home both stylish and functional.
Highlights:
Modern kitchen with spacious island
Abundant natural light with large windows
Slider leading to expansive backyard
Listed by Bill Ruane | Estate Properties
Highlights:
Modern kitchen with spacious island
Abundant natural light with large windows
Slider leading to expansive backyard
Two-car detached garage
Recessed lighting throughout