Betten: 6
Bad:5 Voll

2614 West Logan Boulevard, Chicago, Illinois, 60647, USA

Zum Verkauf angeboten von: Amy Morro | Baird & Warner

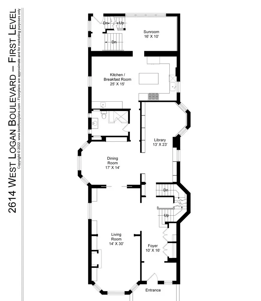
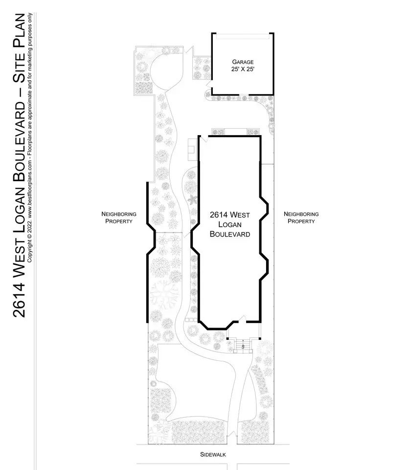
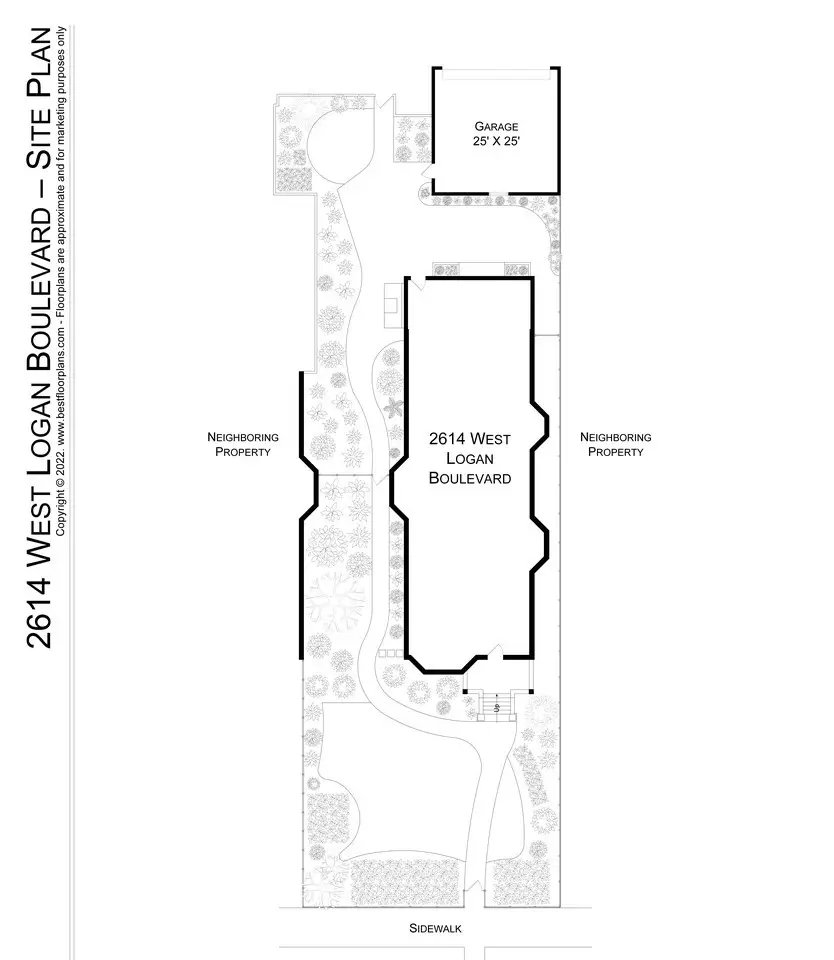
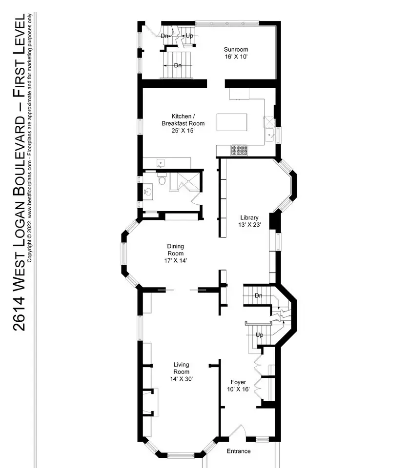
Wunderschönes Graystone-Haus auf einem Doppelgrundstück im historischen Viertel Logan Square. In Zusammenarbeit mit Nina und John Hancock von Hancock & Hancock wurde das Haus 2008 komplett renoviert. Dabei wurde der Innenbereich bis auf die Balkenlage entfernt, die architektonischen Details erhalten und gleichzeitig der Grundriss und die Haustechnik modernisiert. Sie betreten ein großes, zweistöckiges Foyer mit zwei Garderobenschränken und einem Kronleuchter, der zum Reinigen per Knopfdruck heruntergelassen werden kann. Ein originales Schliffglasfenster funkelt im Erkerfenster des Wohnzimmers mit Kamin, schönen Einbauschränken und intakten (verdeckten) Schiebetüren, die zum formellen Esszimmer führen. Die elegante Bibliothek, die an das Esszimmer angrenzt, ist der perfekte Ort für Cocktails vor dem Abendessen mit gemütlichen Sitzgelegenheiten und einer Bar. Den Flur entlang, vorbei an einem Vollbad, befindet sich die Küche. Cambium-Schränke im Shaker-Stil, ein 6-Flammen-AGA-Herd (Dual Fuel) mit 4 Backöfen, eine Dacor-Wärmeschublade, ein Miele-Geschirrspüler und ein Sub-Zero-Kühlschrank sind die Highlights der Küche. Eine bewegliche Kücheninsel für maximalen Nutzwert und ein schöner Ess-/Frühstücksbereich mit großzügigen Einbauschränken runden den Raum ab. Der Wintergarten bietet Blick auf den üppigen Garten mit blauem Steinweg und Terrasse, wo Sie einen DCS-Einbaugrill, bequeme Sitzgelegenheiten und einen Essbereich im Freien finden. Die Doppelgarage diente ursprünglich als Stall und verfügt heute über eine „Tuxedo Junction“. Die begehrten vier Schlafzimmer befinden sich im zweiten Stock, drei davon mit eigenem Bad. Das Hauptschlafzimmer verfügt über drei begehbare Kleiderschränke und ein Badezimmer mit Marmorböden, Waschtischen und einer Dusche mit separater Badewanne. Im Erdgeschoss befindet sich eine Schlafzimmersuite mit Wohnzimmer und Vollbad. Darüber hinaus gibt es ein beeindruckendes Büro mit Einbauschränken und Sitzecke, ein weiteres Schlafzimmer, einen Weinkeller, einen Fitnessbereich mit Kühlschrank und „Costco“-Schränken; einen Werkraum/Werkzeugraum mit Regalen, eine Waschküche mit großem Waschbecken/Hundewaschstation und Sitzecke im Untergeschoss. Abgerundet wird dieser funktionale Raum durch einen Zedernholzschrank, einen Hauswirtschaftsraum und reichlich Stauraum. Das Haus wurde sorgfältig gepflegt und 2021 mit einem neuen Dach ausgestattet. Die originalen Buntglasfenster wurden restauriert, einschließlich der neuen Fenster im Jahr 2008. Zweizonen-Heizung und -Kühlung, zwei Warmwasserbereiter und die gepflegte Gartenanlage werden regelmäßig überprüft. Im gesamten Haus findet sich Merkle-Holzverarbeitung, und die Böden sind mit Viertelschnittholz ausgelegt. Alle Schränke sind professionell gefertigte California-Schränke. 2614 Logan Boulevard verfügt über ein vollständig überwachtes Alarmsystem für Türen, Fenster und Schlösser; das Savant-Sicherheitssystem umfasst Beleuchtung, Bewegungsmelder und Überwachungskameras. Es gibt einen Datenraum, Cat-5-Verkabelung und vier Zonen mit X-Infinity-Konnektivität. Als 2614 Logan Boulevard gebaut wurde, war Logan Square die Stadtgrenze, wo die „EL“ endete. Heute ist Logan Square angesagt, und jeden Monat eröffnen neue Restaurants. Laut einem Anwohner „gibt es am Logan Square einen fantastischen Sonntags-Bauernmarkt mit einem bunt gemischten Publikum, das dem Logan Square so viel Leben verleiht. Die Menschen lieben das Viertel, seinen Gemeinschaftssinn, und es wird viel Energie investiert, um es florieren und integrativ zu gestalten.“ Die Chicago Blue Line hält nur wenige Blocks westlich von 2614 Logan und bietet eine gute Anbindung an die 90/94. Der Logan Boulevard liegt gleich weit von O'Hare und Midway entfernt.
Mehr anzeigen Weniger anzeigen

Wunderschönes Graystone-Haus auf einem Doppelgrundstück im historischen Viertel Logan Square. In Zusammenarbeit mit Nina und John Hancock von Hancock & Hancock wurde das Haus 2008 komplett renoviert. Dabei wurde der Innenbereich bis auf die Balkenlage entfernt, die architektonischen Details erhalten und gleichzeitig der Grundriss und die Haustechnik modernisiert. Sie betreten ein großes, zweistöckiges Foyer mit zwei Garderobenschränken und einem Kronleuchter, der zum Reinigen per Knopfdruck heruntergelassen werden kann. Ein originales Schliffglasfenster funkelt im Erkerfenster des Wohnzimmers mit Kamin, schönen Einbauschränken und intakten (verdeckten) Schiebetüren, die zum formellen Esszimmer führen. Die elegante Bibliothek, die an das Esszimmer angrenzt, ist der perfekte Ort für Cocktails vor dem Abendessen mit gemütlichen Sitzgelegenheiten und einer Bar. Den Flur entlang, vorbei an einem Vollbad, befindet sich die Küche. Cambium-Schränke im Shaker-Stil, ein 6-Flammen-AGA-Herd (Dual Fuel) mit 4 Backöfen, eine Dacor-Wärmeschublade, ein Miele-Geschirrspüler und ein Sub-Zero-Kühlschrank sind die Highlights der Küche. Eine bewegliche Kücheninsel für maximalen Nutzwert und ein schöner Ess-/Frühstücksbereich mit großzügigen Einbauschränken runden den Raum ab. Der Wintergarten bietet Blick auf den üppigen Garten mit blauem Steinweg und Terrasse, wo Sie einen DCS-Einbaugrill, bequeme Sitzgelegenheiten und einen Essbereich im Freien finden. Die Doppelgarage diente ursprünglich als Stall und verfügt heute über eine „Tuxedo Junction“. Die begehrten vier Schlafzimmer befinden sich im zweiten Stock, drei davon mit eigenem Bad. Das Hauptschlafzimmer verfügt über drei begehbare Kleiderschränke und ein Badezimmer mit Marmorböden, Waschtischen und einer Dusche mit separater Badewanne. Im Erdgeschoss befindet sich eine Schlafzimmersuite mit Wohnzimmer und Vollbad. Darüber hinaus gibt es ein beeindruckendes Büro mit Einbauschränken und Sitzecke, ein weiteres Schlafzimmer, einen Weinkeller, einen Fitnessbereich mit Kühlschrank und „Costco“-Schränken; einen Werkraum/Werkzeugraum mit Regalen, eine Waschküche mit großem Waschbecken/Hundewaschstation und Sitzecke im Untergeschoss. Abgerundet wird dieser funktionale Raum durch einen Zedernholzschrank, einen Hauswirtschaftsraum und reichlich Stauraum. Das Haus wurde sorgfältig gepflegt und 2021 mit einem neuen Dach ausgestattet. Die originalen Buntglasfenster wurden restauriert, einschließlich der neuen Fenster im Jahr 2008. Zweizonen-Heizung und -Kühlung, zwei Warmwasserbereiter und die gepflegte Gartenanlage werden regelmäßig überprüft. Im gesamten Haus findet sich Merkle-Holzverarbeitung, und die Böden sind mit Viertelschnittholz ausgelegt. Alle Schränke sind professionell gefertigte California-Schränke. 2614 Logan Boulevard verfügt über ein vollständig überwachtes Alarmsystem für Türen, Fenster und Schlösser; das Savant-Sicherheitssystem umfasst Beleuchtung, Bewegungsmelder und Überwachungskameras. Es gibt einen Datenraum, Cat-5-Verkabelung und vier Zonen mit X-Infinity-Konnektivität. Als 2614 Logan Boulevard gebaut wurde, war Logan Square die Stadtgrenze, wo die „EL“ endete. Heute ist Logan Square angesagt, und jeden Monat eröffnen neue Restaurants. Laut einem Anwohner „gibt es am Logan Square einen fantastischen Sonntags-Bauernmarkt mit einem bunt gemischten Publikum, das dem Logan Square so viel Leben verleiht. Die Menschen lieben das Viertel, seinen Gemeinschaftssinn, und es wird viel Energie investiert, um es florieren und integrativ zu gestalten.“ Die Chicago Blue Line hält nur wenige Blocks westlich von 2614 Logan und bietet eine gute Anbindung an die 90/94. Der Logan Boulevard liegt gleich weit von O'Hare und Midway entfernt.

Highlights:

  • Großes zweistöckiges Foyer

  • Originale geschliffene Glasfenster

  • Elegante Bibliothek mit Bar

  • Maßgefertigte Cambium-Schränke

  • 6-Flammen-AGA-Herd

  • Gehweg und Terrasse aus blauem Stein

  • DCS Einbaugrill

  • Beeindruckendes Büro mit Einbauten

  • Professionell gebaute California-Schränke

  • Savant Sicherheitssystem mit Kameras

  • Mehr anzeigen Weniger anzeigen
Durchgang
Referenz-ID:11717916 Web-ID:cypg

Zum Verkauf von Amy Morro | Baird & Warner

Contact by phone:  773-318-9550
Kontaktformular:

Highlights:

  • Großes zweistöckiges Foyer

  • Originale geschliffene Glasfenster

  • Elegante Bibliothek mit Bar

  • Maßgefertigte Cambium-Schränke

  • 6-Flammen-AGA-Herd

  • Gehweg und Terrasse aus blauem Stein

  • DCS Einbaugrill

  • Beeindruckendes Büro mit Einbauten

  • Professionell gebaute California-Schränke

  • Savant Sicherheitssystem mit Kameras

Weitere verwandte Sammlungen entdecken