Betten: 4
Bad: 0

6850 Frying Pan Road, Boulder, Colorado, 80301, USA

Zum Verkauf angeboten von: Janet Borchert, CRS and ABR | WK Immobilien

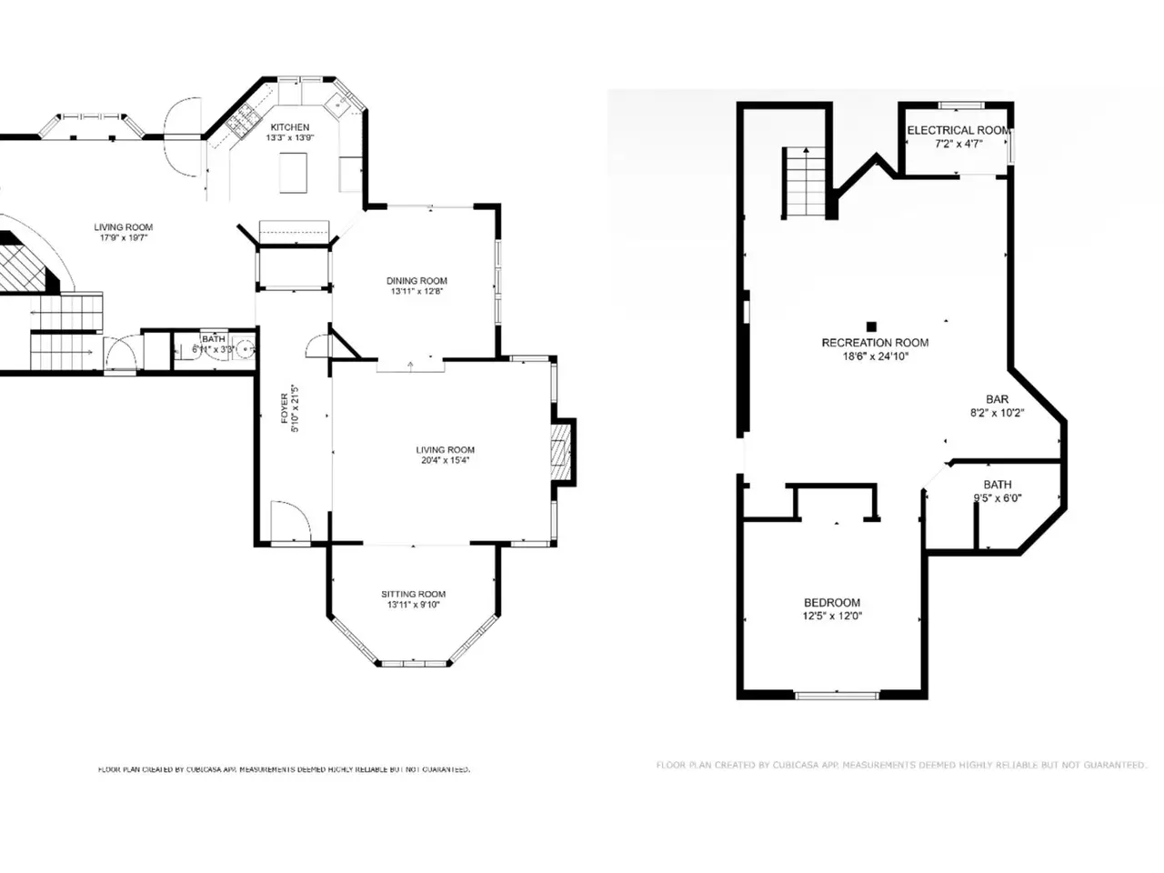
Eingebettet im Herzen der begehrten Gunbarrel Greens verbindet dieses charmante zweistöckige Haus mühelos traditionelle Eleganz mit modernen Akzenten. Betreten Sie das geräumige Foyer mit seinem ruhigen Arboretum, das den Ton für die einladenden Räume vorgibt. Das formelle Wohnzimmer, eingebettet in einen gemütlichen Kamin, umfasst eine schöne 30x30 cm große Sitzecke mit großen, sonnendurchfluteten Fenstern. Die einladende Küche besticht durch mattierte Quarz-Arbeitsplatten, elegante Edelstahlgeräte, eine Kücheninsel und moderne, stilvolle Leuchten. Das angrenzende Familienzimmer bietet einen zweiten Kamin und ein Erkerfenster, das den Blick auf den üppigen Garten perfekt einrahmt. Im Obergeschoss dient die Master-Suite mit ihrem privaten 23x23 cm großen Büro und dem frisch renovierten Badezimmer mit Badewanne als wahrer Rückzugsort. Im Obergeschoss befinden sich außerdem zwei Schlafzimmer, eine Waschküche, ein modernisiertes Vollbad und ein zusätzlicher Wintergarten. Der professionell ausgebaute Keller erweitert Ihren Wohnraum um einen großen Hobbyraum, eine Bar und ein viertes Schlafzimmer mit Tageslichtfenster. Genießen Sie den wunderschön angelegten, weitläufigen Garten mit Terrasse für gesellige Stunden im Freien, Hochbeeten, gemütlicher Feuerstelle und altem Baumbestand, der Privatsphäre und Ruhe bietet. Der Verkäufer hat zahlreiche Modernisierungen vorgenommen, darunter neue Zierleisten und neue Fußböden. Die kreisförmige Auffahrt sorgt für zusätzlichen Komfort. Dieses atemberaubende Haus bietet die perfekte Balance aus Komfort, Stil und Platz – sichern Sie sich jetzt Ihr Eigen!
Mehr anzeigen Weniger anzeigen

Eingebettet im Herzen der begehrten Gunbarrel Greens verbindet dieses charmante zweistöckige Haus mühelos traditionelle Eleganz mit modernen Akzenten. Betreten Sie das geräumige Foyer mit seinem ruhigen Arboretum, das den Ton für die einladenden Räume vorgibt. Das formelle Wohnzimmer, eingebettet in einen gemütlichen Kamin, umfasst eine schöne 30x30 cm große Sitzecke mit großen, sonnendurchfluteten Fenstern. Die einladende Küche besticht durch mattierte Quarz-Arbeitsplatten, elegante Edelstahlgeräte, eine Kücheninsel und moderne, stilvolle Leuchten. Das angrenzende Familienzimmer bietet einen zweiten Kamin und ein Erkerfenster, das den Blick auf den üppigen Garten perfekt einrahmt. Im Obergeschoss dient die Master-Suite mit ihrem privaten 23x23 cm großen Büro und dem frisch renovierten Badezimmer mit Badewanne als wahrer Rückzugsort. Im Obergeschoss befinden sich außerdem zwei Schlafzimmer, eine Waschküche, ein modernisiertes Vollbad und ein zusätzlicher Wintergarten. Der professionell ausgebaute Keller erweitert Ihren Wohnraum um einen großen Hobbyraum, eine Bar und ein viertes Schlafzimmer mit Tageslichtfenster. Genießen Sie den wunderschön angelegten, weitläufigen Garten mit Terrasse für gesellige Stunden im Freien, Hochbeeten, gemütlicher Feuerstelle und altem Baumbestand, der Privatsphäre und Ruhe bietet. Der Verkäufer hat zahlreiche Modernisierungen vorgenommen, darunter neue Zierleisten und neue Fußböden. Die kreisförmige Auffahrt sorgt für zusätzlichen Komfort. Dieses atemberaubende Haus bietet die perfekte Balance aus Komfort, Stil und Platz – sichern Sie sich jetzt Ihr Eigen!

Highlights:

  • Holzkamine

  • Arbeitsplatten aus Quarz mit matter Oberfläche

  • Modernisierte, stilvolle Leuchten

  • Erkerfenster mit Blick auf den Hinterhof

  • Privates Büro in der Hauptsuite

  • Bar im Keller

  • Weitläufiger Garten mit Terrasse

  • Hochbeete

  • Gemütlicher Feuerstellenbereich

  • Kreisförmige Auffahrt

  • Mehr anzeigen Weniger anzeigen
Referenz-ID:1029864 Web-ID:cmrq

Zum Verkauf von Janet Borchert, CRS and ABR | WK Immobilien

Contact by phone:  3032633215
Kontaktformular:

Highlights:

  • Holzkamine

  • Arbeitsplatten aus Quarz mit matter Oberfläche

  • Modernisierte, stilvolle Leuchten

  • Erkerfenster mit Blick auf den Hinterhof

  • Privates Büro in der Hauptsuite

  • Bar im Keller

  • Weitläufiger Garten mit Terrasse

  • Hochbeete

  • Gemütlicher Feuerstellenbereich

  • Kreisförmige Auffahrt